Ancienne ferme de caractère + de 200 m² à réinventer fort potentiel habitation ou investissement
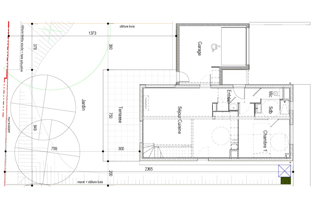
Ancienne ferme d'environ 200 m² habitables, implantée sur une parcelle de 2 345 m², au calme, sans vis-à-vis immédiat.
Un bien brut, à rénover intégralement, destiné à des profils investisseurs, marchands, ou amateurs de projets ambitieux.
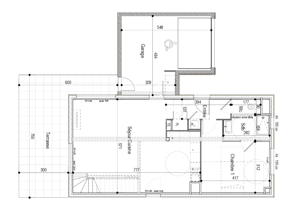
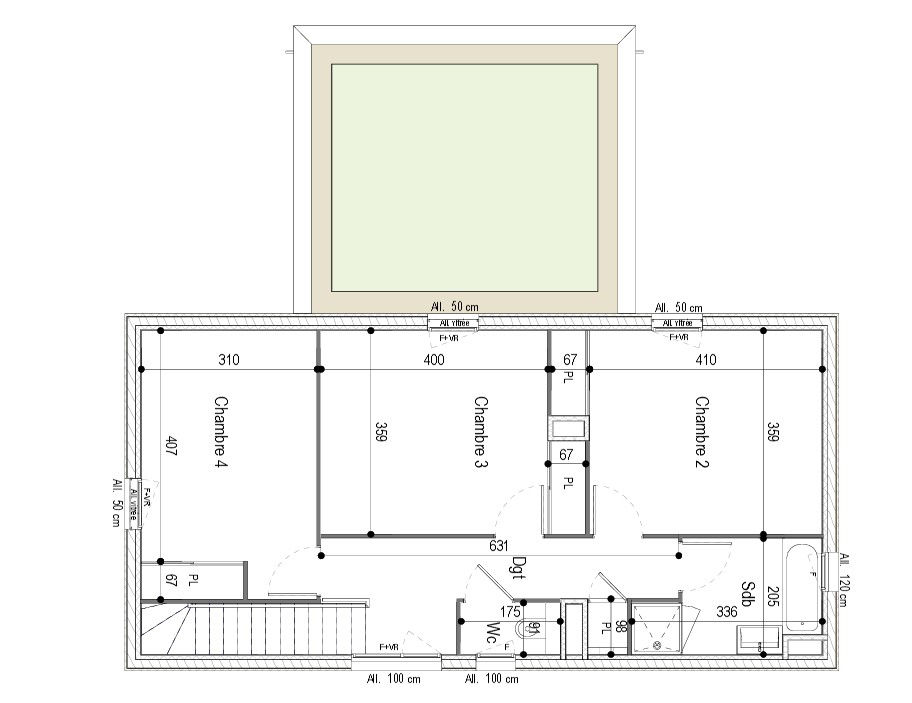
La bâtisse principale se développe sur deux niveaux : Rez-de-chaussée : cuisine, séjour, salle de bain, WC Étage : 4 grandes chambres, volumes généreux, distribution à repenser entièrement selon le projet L'ensemble se distingue par : Une toiture entièrement refaite à neuf sur la maison et les dépendances Un bel escalier ancien, élément architectural à valoriser De nombreuses dépendances attenantes, offrant un potentiel rare : création de logements indépendants, gîtes, locations courte durée, ou extension de l'habitation principale Deux espaces jardins distincts, exploitables selon les usages Stationnements Le cadre est calme et rural, propice à un projet de résidence principale de caractère et à une opération d'investissement à forte valeur ajoutée (division, locatif saisonnier, multi-logements sous réserve des autorisations). ?? Travaux majeurs à prévoir : second oeuvre complet, redistribution des volumes, réseaux, finitions.
Ce bien s'adresse à ceux qui savent transformer le potentiel en valeur. Dossier et informations complémentaires sur demande.
Honoraires à la charge du vendeur. Classe énergie E, Classe climat E Montant estimé des dépenses annuelles d'énergie pour un usage standard : entre 5640.00 et 7690.00 sur les années 2021, 2022 et 2023 (abonnements compris). Les informations sur les risques auxquels ce bien est exposé sont disponibles sur le site Géorisques : georisques.gouv.fr.