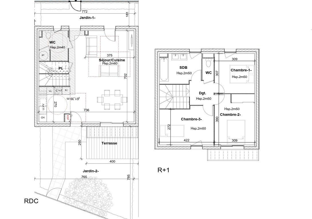
Maison récente à Vaulx-en-Velin Secteur La Rize À 5 minutes de la future station de tramway. Située dans une résidence sécurisée de 2017, cette belle maison accolée d'un côté vous séduira par ses prestations modernes et son excellent état d'entretien, vendue avec deux parkings privatifs. Au rez-de-chaussée, découvrez une spacieuse pièce de vie de 47 m² baignée de lumière, avec cuisine équipée ouverte, idéale pour une famille, vous y trouverez également une salle d'eau avec WC. À l'étage, l'espace nuit comprend trois chambres, une salle de bain et de nombreux rangements dont un coin bureau, l'ensemble est fonctionnel. Côté confort : Isolation performante DPE B Chauffage gaz récent et climatisation réversible Double vitrage PVC & stores roulants électriques Maison économe et confortable en toute saison Vous profiterez également d'un agréable extérieur privatif d'environ 50 m² clos de mur dans résidence familiale de 2000m² avec accès sécurisé, portail électrique et visiophone Ce bien offre un cadre de vie calme et agréable, à proximité immédiate des commerces, écoles et futurs transports (tramway ligne T9 station Stade Jomard).
Maison clé en main, alliant confort, modernité et économies d'énergie. À visiter sans tarder ! Le prix de ce confort 360 000 uros, 2 stationnements inclus, et honoraires à la charge du vendeur. Charges annuelles 840 uros soit 72 uros mensuel. Bien soumis au régime de la copropriété 10 lots (+23 lots stationnements). Pas de procédures en cours. DPE B (96kwh/m2/an) et gaz effet de serre B (7kg co2/m2/an). CONFIANCE IMMOBILER, vous accompagne dans tous vos projets (estimation, vente, défiscalisation immobilière).Dossier suivi par l'agent commerciale Emilie Brugo ADC69012023000000123. Barème d'honoraires se reporter au site 3w.confiance-immobilier.fr
Honoraires à la charge du vendeur. Dans une copropriété de 23 lots. Aucune procédure n'est en cours. Classe énergie B, Classe climat B Montant moyen estimé des dépenses annuelles d'énergie pour un usage standard, établi à partir des prix de l'énergie de l'année 2021 : entre 660.00 et 970.00 . Les informations sur les risques auxquels ce bien est exposé sont disponibles sur le site Géorisques : georisques.gouv.fr.