Maison contemporaine 5 chambres, piscine et magnifique point
Langon 33210
0
Honoraires à la charge de l'acquéreur et du vendeur (Prix hors honoraires : 405000 euros).
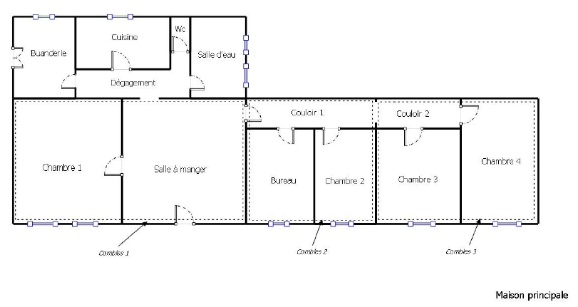
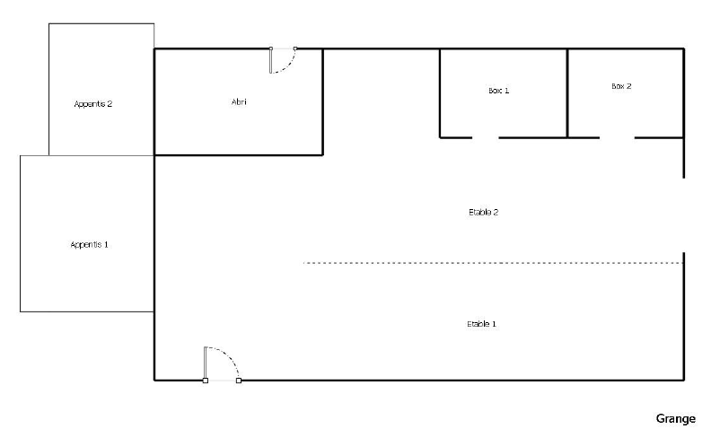
Proche Langon, sur les coteaux, bénéficiant d'un magnifique point de vue, énorme coup de coeur pour cette maison contemporaine composée d'une entrée avec débarras, salon, salle à manger, cuisine équipée, cellier, dégagement, 5 chambres dont une suite parentale avec sde et dressing, une sdb, un WC, une buanderie. Terrasses avec store-ban, piscine avec terrasse et gazebo. Abris de jardins, et diverses pièces de stockage dans le vide sanitaire. Terrain autour d'environ 2590 m2 clos. Coup de coeur assuré. ref 4641 Les informations sur les risques auxquels ce bien est exposé sont disponibles sur le site Géorisques : www.georisques.gouv.fr