Honoraires à la charge de l'acquéreur (Prix hors honoraires : 350000 euros).
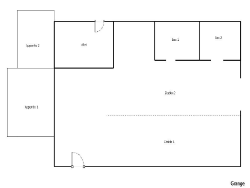
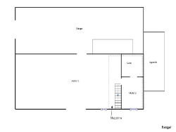
A 5 minutes de La Réole et 20 minutes de Langon, sur la commune de Morizès Découvrez cette propriété dans une environnement isolé de tout voisinnage (premier voisin à plus de 300 mètres) Elle se compose d'une maison d'habitation à rénover, d'une étable (171 m2) et d'une grange (350 m2) réhabilitables en habitation ou idéales pour vos animaux (chevaux, etc.) votre matériel (TP, agricole, etc...) Le tout sur 14 hectares de terres, aujourd'hui occupées par des vignes librement arrachables. La maison d'habitation (147,27 m2) se compose d'un séjour, une cuisine, une salle d'eau, 5 chambres et un débarras. Une rénovation complète est à prévoir. Cette propriété est idéale pour un regroupement familial, un projet agricole /équestre ou une résidence secondaire. Pour plus d'informations et de photos, vous pouvez contacter Marion Baribeaud au 06.18.65.17.73