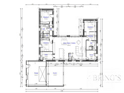
Maison de Rêve - Plain-pied Neuf Découvrez cette magnifique maison plain-pied sur vide sanitaire, construite en 2025, offrant un cadre de vie exceptionnel et une qualité de vie inégalée. Avec une surface habitable de 135 m² et une surface au sol de 170 m², cette propriété est un véritable havre de paix pour les familles en quête de confort et de modernité.
C'est une maison mise hors d'air et hors d'eau. Il faudra prévoir le chauffage, la plomberie, la ventilation, l'électricité, l'isolation et les sols (devis à l'appui). Imaginez-vous dans un vaste séjour de 57 m² baigné de lumière, avec une vue imprenable sur le jardin et la terrasse. Les 6 pièces, dont 3 chambres spacieuses, vous offrent un espace de vie généreux et fonctionnel. La maison est équipée d'une salle de bains et d'une salle d'eau, ainsi que de deux WC indépendants pour un confort optimal.
La terrasse, accessible depuis le séjour, est idéale pour profiter des beaux jours et des soirées estivales. La toiture en bac acier de ton ardoise et les ouvertures en PVC double vitrage garantissent une isolation thermique et phonique optimale.
La maison est également équipée d'un système d'assainissement conforme, d'une cave pour ranger vos affaires, et de deux places de stationnement intérieures (garage) et deux extérieures (carport) pour garer vos véhicules en toute sécurité.
Cette maison est à proximité de toutes les commodités. Vous trouverez plusieurs commerces d'alimentation générale, restaurants, ainsi qu'une crèche, une maternelle, une école élémentaire et un collège à seulement 5 minutes en voiture. Le pôle santé est également à 5 minutes en voiture. La maison est éligible à l'internet haut débit et à la fibre.
Ne manquez pas cette opportunité unique de vivre dans une maison neuve, moderne et fonctionnelle, offrant un cadre de vie exceptionnel et toutes les commodités nécessaires pour une vie sereine et agréable et à moins de 10 minutes de la mer.
Contactez-moi dès aujourd'hui pour tout renseignements sur les charmes de cette maison de rêve.
Honoraires à la charge du vendeur. Non soumis au DPE. Les informations sur les risques auxquels ce bien est exposé sont disponibles sur le site Géorisques : georisques.gouv.fr.
Votre conseiller BRING'S-Réseau et agence immobilière Paris : Fabien CHATELET Agent commercial (Entreprise individuelle) RSAC 850750472
135 m²
2 111 €
57 m²
1866 m²
6
3
1
1
2 (séparés)
2025
Sud
Oui
2
2
1
Contact Chatelet
Contacter gratuitement à l'aide du formulaire ci-dessous.