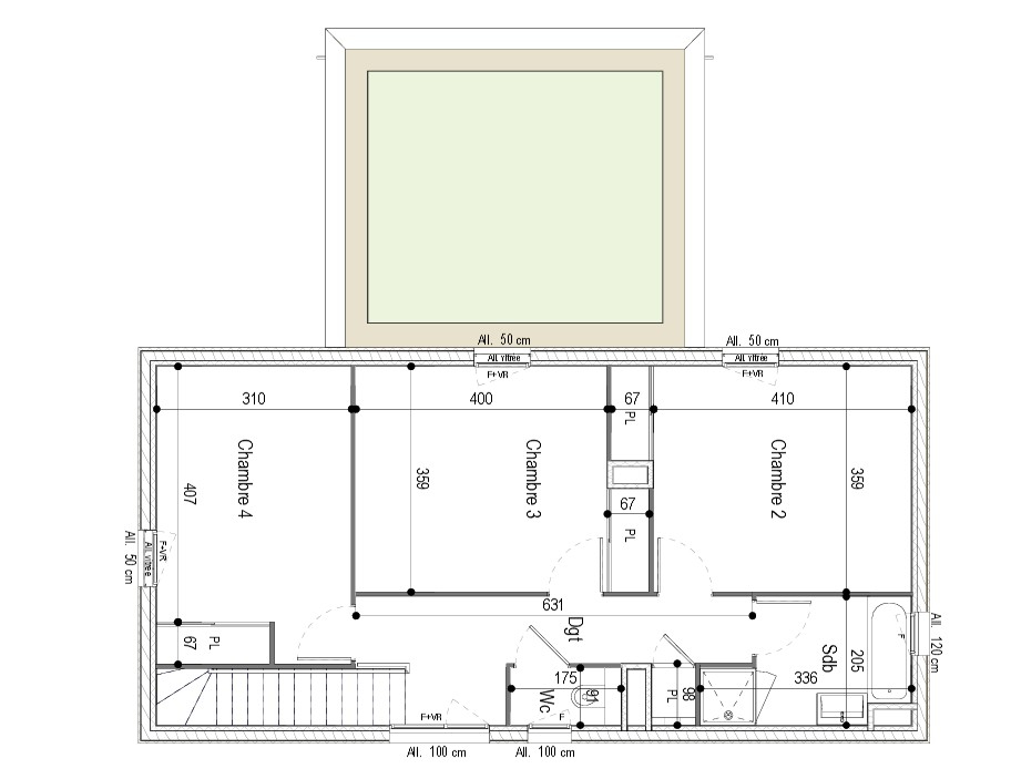
Nous avons le plaisir de vous présenter, à 8min de Montanay, cette maison individuelle, intégralement rénovée, de type 5 et d'une surface de 188m2 sur son terrain de 721m2 dans sur environnement calme et arboré. Mionnay est un village aux portes de Lyon, avec une gare vous permettant d'accéder à La Part-Dieu en seulement 20 min et un accès à l'autoroute. Vous bénéficierez des commerces de proximité, des écoles primaire et maternelle ( ramassage scolaire pour les collèges et lycées). Elle se compose: - au rdc: une entrée, 2 chambres, un dressing, une salle d'eau, une buanderie, un WC et un garage - à l'étage: une cuisine, une salle à manger/salon, de 2 chambres, un dressing, une salle de bains avec baignoire et douche à l'italienne, et un WC. Possibilité de deux logements indépendants. Les plus: - menuiseries en aluminium et PVC - stores électriques en aluminium - mur Nord et combles isolés - tuiles changées - bandeaux et goutières en aluminium - porte de garage et portail electriques, en aluminium - façade neuve - climatisation reversible sur les 2 niveaux. Le terrain est piscinable, la maison est hors lotissement, et vous bénéficierez d'un carport pour vos véhicules. SAS REVO IMMO - CHAGNARD Valérian EI - O603 896 052 - Plus d'informations sur www.revo.immo (réf. 4901051027). Agent commercial RSAC BOURG-EN-BRESSE 880 152 863 - Prix TTC et Honoraires à charge vendeur TTC - Les informations sur les risques auxquels ce bien est exposé sont disponibles sur le site Géorisques : https://www.georisques.gouv.fr/.
187 m²
3 128 €
721 m²
5
4
1
1
2
1972
3
Consommations énergétiques
Logement économe
134
Logement énergivore (kWhEP/m2/an)
Émissions de gaz à effet de serre
Faible émission de GES
29
Forte émission de GES(kgeqCO2/m2/an)
Contact SAS REVO IMMO
Contacter gratuitement à l'aide du formulaire ci-dessous.