Vue pour vous à SEMONS, à 7km de la Côte Saint André et à moins de 2 km des écoles avec un arrêt de bus à 300 mètres, venez vite découvrir cette maison entièrement rénovée en 2001/2002 de 195.46m2 habitables!
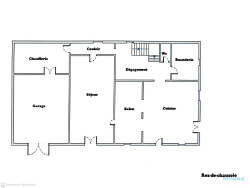
La maison se présente ainsi : RDC =) Entrée par la cuisine de 26m2 exposée Sud-Est et ouvrant sur une terrasse de 40m2 =) Arche ouvrant sur un coin salon de 13m2 =) Spacieuse salle à manger de 34m2 =) A l'arrière de ces pièces, un couloir dessert d'un côté la chaufferie et l'accès au garage de 35m2, de l'autre côté un wc avec lave-main, et une buanderie viennent parfèrent ce rdc RDC+1 =) 4 très grandes chambres =) 1 coin bureau =) 1 salle de bain et douche =) 1 wc indépendant
COTE EXTERIEUR: =) Jolie vue sur la plaine du Liers =) Portail manuel mais gaines tirées =) Terrain de 953 m2 en zone UD =) Cour =) Terrasse de 40m2 avec pergola =) Piscine hors sol de 17m3 (liner à changer) =) Bassin =) Assainissement individuel non conforme ( Étude de sol et devis effectués) =) Façade à prévoir ( devis effectués)
INFORMATIONS COMPLEMENTAIRES =) Beaux volumes et possibilité d'agrandissement via grenier =) Construction en pisé et béton cellulaire =) Murs périphériques doublés en carreaux de briques =) Rénovation en 2001/2002 =) Toit refait entièrement en 2002 =) Isolation des combles et une partie du garage en 2021 =) Huisseries en bois et double vitrage 2001/2002 =) Pas de volets =) Sols et murs 2001/2002 =) Chauffage : chaudière fioul / et une deuxième au bois =) ECS (chaudière fioul) =) Adoucisseur =) Fibre optique =) Électricité en 380 refaite en 2001/2002 =) Vmc =) Exposition Ouest/ Sud/ Est
Pour visiter au plus vite ce bien rare sur le secteur de part ses volumes et son fort potentiel de rénovation, contactez sans attendre Broizat Angeline (Agent commercial immobilier, RSAC N° 531229037), au 06.84.58.03.64 ou a.broizat@pietrapolis.fr
Honoraires à la charge du vendeur. Classe énergie E, Classe climat D Montant moyen estimé des dépenses annuelles d'énergie pour un usage standard, établi à partir des prix de l'énergie de l'année 2021 : entre 2610.00 et 3532.00 . Les informations sur les risques auxquels ce bien est exposé sont disponibles sur le site Géorisques : georisques.gouv.fr.