Maison de 2020 au centre ville de 110m2 - 4 chambres avec Garage
Saint-Symphorien-d'Ozon 69360
0
Honoraires à la charge du vendeur.
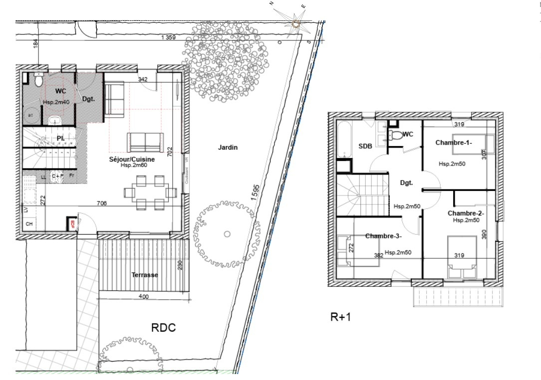
En Exclusivité, chez Pietrapolis Chaponost, nous vous proposons cette maison de 2020 au centre ville de Saint Symphorien d'Ozon de 110m2 habitable avec 4 chambres, d'une pièce de vie d'environ 40m2 donnant sa terrasse et son jardinet, un garage de 22m2 et une place de stationnement !!!
Vous profiterez d'un cadre de vie exceptionnelle depuis la pièce de vie d'environ 40m2 comprenant un séjour et une cuisine aménagée / équipée de bonne qualité. La terrasse de 55m2 est une parfaite extension pour profiter de l'extérieur. Une chambre et une salle de bain / buanderie complètent le rez-de-chaussée.
Au premier étage, le coin nuit s'organise avec 3 chambres, un dressing, un toilette et une salle d'eau.
Un garage de 22m2 et une place de stationnent complètent ce bien.
Le système de chauffage principale est au gaz pour l'eau et le chauffage.
N'hésitez plus pour visiter ou faire estimer votre bien, prenez rendez-vous: https://calendly.com/s-riondet/30min?month=2024-03 Contactez Sébastien Riondet au 0647332216 ou s.riondet@pietrapolis.fr
Honoraires à la charge du vendeur. Classe énergie C, Classe climat C Montant estimé des dépenses annuelles d'énergie pour un usage standard : entre 1290.00 et 1790.00 sur les années 2021, 2022 et 2023 (abonnements compris). Les informations sur les risques auxquels ce bien est exposé sont disponibles sur le site Géorisques : georisques.gouv.fr.