Dans un charmant village, venez découvrir cette maison d'habitation d'environ 64 m² à restaurer.
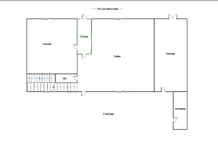
Elle se compose d'un salon/salle à manger, une cuisine, deux chambres et une salle d'eau avec un WC.
Le tout sur un terrain clos de 445 m².
Un garage, une cave, un grenier et une dépendance.
Ecoles et commerces à proximité. Gare de Montereau à 10 min en voiture.
A VISITER SANS TARDER !!!!
Cette annonce référence 251059 vous est présentée par votre agent commercial BSK Immobilier LAETITIA HOORNAERT (EI) immatriculé au RSAC de MELUN (77000) sous le numéro 89302452100013.
Prix du bien : 133 500,00 €
Les honoraires d'agence sont à la charge du vendeur.
A propos des performances énergétiques :
Date de réalisation du diagnostic énergétique : 03/09/2024
Score DPE : 466 kWhEP/m²/an
Score GES : 102 kgepCO2/m²/an
Montant estimé des dépenses annuelles d'énergie pour un usage standard : entre 2600.00 € et 3560.00 € par an. Prix moyens des énergies indexés sur l'année 2023 (abonnements compris).
Les informations sur les risques auxquels ce bien est exposé sont disponibles sur le site Géorisques : www.georisques.gouv.fr
64 m²
2 086 €
445 m²
3
2
1
1
Oui
Oui
Consommations énergétiques
Logement économe
466
Logement énergivore (kWhEP/m2/an)
Émissions de gaz à effet de serre
Faible émission de GES
102
Forte émission de GES(kgeqCO2/m2/an)
Contact Iad France - LAETITIA HOORNAERT
Contacter gratuitement à l'aide du formulaire ci-dessous.