Maison de caractère (1730) sur 1,2 hectare avec dépendances
Challans 85300
0
Honoraires à la charge du vendeur.
44 / 85 Propriété aux confins de La Loire-Atlantique et de la Vendée, beau cadre de vie et calme absolu à 1km de tous services et commodités (écoles, collèges, crèches, soins médicaux, supermarchés, cinéma, complexe sportifs, restaurants, etc...), à 30mn NANTES (aéroport) & des plages, 20mn CHALLANS, LA ROCHE / YON, MONTAIGU, MACHECOUL, ... Demeure de 1730 en parfait état, 260m2 hab. (5/6 chambres) + pièces de service + grandes dépendances 300m2, parking, parc soigné, prairie, l'ensemble sur 1,2 hectare clos à l'abri des nuisances et de tout vis-à-vis. Véritable havre de paix offrant authenticité et confort moderne dans un environnement de qualité.
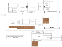
L'HABITATION (260m2 + pièces de service) est composée au rez-de-chaussée (sol tomettes anciennes, poutraison apparente) : Hall d'entrée ; Vestiaire avec lave-mains et wc indépendant ; Salon avec cheminée monumentale en granit et poêle à bois récent + accès vers terrasse et jardin ; Salle à manger avec accès terrasse et jardin ; Cuisine AE (Arthur-Bonnet de 2021) avec accès terrasse ; Bureau ou petite salle à manger avec cheminée et accès terrasse côté accueil ; Chambre 1 avec salle de bain privative (meuble vasque, bain, douche, wc) ; Chambre 2 (actuellement en pièce multi usages : bureau, repassage et sport). Pièces de service, faisant le lien entre la demeure et la grange, dont : Chaufferie/buanderie/Entrée de service (avec évier et douche de service) ; Lingerie/dressing avec grands rangements. À l'étage : Couloir desservant Chambre 3 (ou grand bureau comme actuellement) ; Chambre 4 avec placard ; Salle de bain (2 vasques, bain, wc, rangements - accessible depuis le couloir, depuis la chambre 4 et possiblement depuis la chambre 3) ; Chambre 5 avec placard et cabinet de toilette (lavabo, miroir, rangement) ; Chambre 6 avec salle de bain (meuble vasque, bain, wc) ; WC indépendant sur palier.
LES DÉPENDANCES sont composées de : Grange (eau/électricité ok) d'environ 300m2 dont atelier, cave à vin, cave de stockage, espace de stockage, réserve bois, boxes pour poneys et chèvres, ... Grange ouverte/préau ; Abri de prairie ; ...
CONFORT ET TECHNIQUE : Construction de caractère et de qualité des années 1730 en excellent état général bénéficiant d'un entretien suivi et de travaux récents de modernisation ; Couverture tuile (de 2015 pour la maison et 2019 pour la grange) ; Bonne isolation murale et supérieure ; VMC ; Ouvertures en PVC double vitrage de 2019 (en partie OB et en partie équipées de moustiquaires) ; Volets alu de 2019 ; Chauffage central hydraulique et production eau chaude par PAC ATLANTIC air/eau hybride de 2023 ; Poêle à bois SINEOS F de 2021 pour feux d'agrément (et très bon chauffage intersaison) ; Faible dépense énergétique (DPE = C) ; Eau potable du réseau publique ; 5/6 chambres, 3 salles de bain, 2 douches, 1 cabinet de toilette, 5 wc ; Assainissement autonome conforme ; Portail alu télécommandé ; Visiophone ; Voie d'accès et parking en enrobé (2022) ; Éclairage extérieur des accès ; ... ; Parc soigné et clôturé avec petit plan d'eau sécurisé ; Propriété entièrement clôturée (2018) ; Demeure lumineuse, pièces de vie traversantes exposées Est / Ouest ; 5 des chambres sont avantageusement exposées (suite parentale du rez-de-chaussée au Nord-Est et 4 autres chambres à l'Est) ; Terrasses toutes expositions (115 + 15m2) ; Maison de caractère mêlant habilement authenticité (façades pierre apparente, sol tomettes ancienne, cheminée monumentale, poutraison apparente, ...) et confort moderne (double vitrage, volets alu, PAC, ...) ; Dossier de factures d'artisans locaux (travaux d'entretien, de rénovation et modernisation) pour + de 200kEUR depuis 8 ans ; Site très calme sans nuisance ni vis-à-vis bénéficiant néanmoins de toutes les commodités très proches dans un secteur offrant une excellent Ce bien vous est presente par Retz-Immobilier.com ; Agence specialiste des Maisons de Charme, Belles Demeures & Proprietes de Caractere a vendre en Vendee, Loire-Atlantique & Morbihan. - Annonce rédigée et publiée par un Agent Mandataire -
Propriété
260 m²
2 462 €
12340 m²
9
5
3
2
5
1730
4
2
Consommations énergétiques
Logement économe
153
Logement énergivore (kWhEP/m2/an)
Émissions de gaz à effet de serre
Faible émission de GES
4
Forte émission de GES(kgeqCO2/m2/an)
Contact Dubois
Contacter gratuitement à l'aide du formulaire ci-dessous.