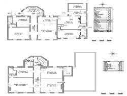
Maison d'habitation de la fin du XIXème siècle avec jardin de 600m2 située dans le village de Gabarret.
ici près de 350m2 + combles aménageables de 150m2 viendront vous permettre de réaliser votre projet quel qu'en soit le thème.
Volumes et cachet certain pour les amoureux de l'ancien, proximité des commodités pour le côté pratique.
Les +: Véritable cave, toiture re-suivie en 2024
Votre conseiller de confiance pour visiter ce bien - Grégory PRIOD 06x42x59x14x08
Annonce rédigée et publiée par un agent mandataire.
Référence de l'annonce : GREG_8369
Le prix indiqué comprend les honoraires à la charge du vendeur.
Les informations sur les risques auxquels ce bien est exposé sont disponibles sur le site de Géorisques : www.georisques.gouv.fr
343 m²
525 €
45 m²
810 m²
7
6
1
1906
Séparée
Consommations énergétiques
Logement économe
387
Logement énergivore (kWhEP/m2/an)
Émissions de gaz à effet de serre
Faible émission de GES
17
Forte émission de GES(kgeqCO2/m2/an)
Contact PRIOD
Contacter gratuitement à l'aide du formulaire ci-dessous.