Maison de village atypique de 117m² avec T2 indépendant de 37 m ² terrasses et garage ? DPE D
Niozelles 04300
0
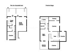
Au c?ur du séduisant village de Niozelles, à quelques minutes de Forcalquier, découvrez cette maison prête à vivre de 154?m², modulable selon vos projets : résidence principale, investissement locatif ou mixte.
- T2 indépendant de 37 m²: idéal pour générer un revenu locatif ou accueillir un proche,
- Grand logement principal modulable et lumineux de 117m²,
- Terrasses dont une avec vue dégagée sur la vallée du Beveron,
- Garage et 80 m² de caves avec accès direct depuis la place,
- DPE D : compacité etconfort d'usage avec trois modes de chauffage,
Cette maison séduit par son charme atypique, ses espaces modulables et son fort potentiel d'évolution.
Contactez-moi dès maintenant pour organiser une visite !
Cette annonce référence 309802 vous est présentée par votre agent commercial BSK Immobilier ANAÏS TOUBOULIC (EI) immatriculé au RSAC de NANTES (44000) sous le numéro 81798969200030.
Prix du bien : 235 000,00 €
Les honoraires d'agence sont à la charge du vendeur.
A propos des performances énergétiques :
Date de réalisation du diagnostic énergétique : 05/11/2025
Score DPE : 239 kWhEP/m²/an
Score GES : 7 kgepCO2/m²/an
Montant estimé des dépenses annuelles d'énergie pour un usage standard : entre 2440.00 € et 3340.00 € par an. Prix moyens des énergies indexés sur l'année 2021 (abonnements compris).
Les informations sur les risques auxquels ce bien est exposé sont disponibles sur le site Géorisques : www.georisques.gouv.fr
117 m²
2 009 €
5
4
1
1
2
1920
Ouest
Nord
Oui
Consommations énergétiques
Logement économe
239
Logement énergivore (kWhEP/m2/an)
Émissions de gaz à effet de serre
Faible émission de GES
7
Forte émission de GES(kgeqCO2/m2/an)
Contact ANAÏS TOUBOULIC
Contacter gratuitement à l'aide du formulaire ci-dessous.