**Marquette-lez-Lille : Opportunité d'investissement !**
Idéal pour investisseurs à la recherche d'une rentabilité immédiate de +8.5% net
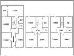
Maison entièrement loué en Colocation ! Récemment rénovée, parfaitement conçue pour une colocation
- 8 chambres spacieuses : Chaque chambre offre un espace de vie confortable.
- 3 salles de douche modernes : Un point d'eau par étage, pour un confort optimal.
- 3 WC séparés.
- Entièrement rénovée : Aucune rénovation à prévoir ! La maison a été modernisée.
- Espaces de vie communs : Une cuisine équipée et un espace de vie.
Points forts :
- Localisation idéale : Située dans un quartier calme.
- Optimisation pour colocation : Grâce à ses nombreux espaces et à sa disposition intelligente, cette maison est parfaite pour une colocation rentable et bien pensée.
- Investissement sûr : Avec la forte demande locative dans la région, cette propriété représente une opportunité d'investissement exceptionnelle, et une belle rentabilité
Les informations sur les risques auxquels ce bien est exposé sont disponibles sur le site Géorisques : www.georisques.gouv.fr
154 m²
2 656 €
12 m²
10
8
3
3
Américaine
Oui
Consommations énergétiques
Logement économe
225
Logement énergivore (kWhEP/m2/an)
Émissions de gaz à effet de serre
Faible émission de GES
7
Forte émission de GES(kgeqCO2/m2/an)
Contact La Marquettoise
Contacter gratuitement à l'aide du formulaire ci-dessous.