Maison en pierre de 150m² + dépendances de 160m² attenant le
Arveyres 33500
0
Honoraires à la charge du vendeur.
Votre agence MON AIDE IMMO vous présente cette très belle maison en pierre T5 de 150m² + ses dépendances attenantes de 160m², le tout sur une parcelle de terrain de 800 m² dans un environnement très calme.
Située à Arveyres, à proximité des écoles et du collège Jean Auriac et à seulement 5 minutes du centre de Libourne.
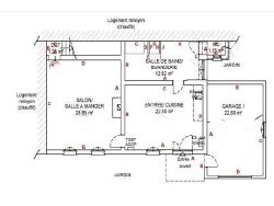
Cette maison comprend au rez-de-chaussée :
- Une grande entrée de 14m², donnant sur un séjour de 33m² avec belle hauteur sous plafond et sa cheminée en pierre.
- Une grande cuisine lumineuse de 16m², avec possibilité de l'ouvrir sur le séjour pour faire une grande pièce de vie traversante.
- Une chambre avec placard de 14.20m².
- Une salle d'eau et un WC indépendant.
Dépendances attenantes de 160m² offrant de nombreuses possibilités, permettant également la création de logements supplémentaires.
À l'étage, vous trouverez :
- Un pallier avec beau parquet ancien, desservant 3 chambres (17, 14 et 10.50 m²).
La maison dispose de deux accès différents permettant la création de plusieurs logements, idéal pour un investisseur offrant un bon rendement locatif, une famille nombreuse ou un marchand de biens.
Prestations anciennes : Pierre, belle hauteur sous plafond, poutres apparentes, parquet ancien, cheminée en pierre. La maison est reliée au tout-à-l'égout.
Honoraires à la charge du vendeur. Classe énergie D, Classe climat D Montant estimé des dépenses annuelles d'énergie pour un usage standard : entre 3000.00  et 4110.00  sur les années 2021, 2022 et 2023 (abonnements compris). Les informations sur les risques auxquels ce bien est exposé sont disponibles sur le site Géorisques : georisques.gouv.fr.