Maison en Pierres - 5 Chbres - Piscine - Local indépendant - D
Vienne 38200
Centre Ville
Honoraires à la charge du vendeur.
Maison en Pierres 216 m2 - 5 Chambres - Local indépendant 34.00 m2 - Piscine - Garage de 90 m2 - Terrain en restanques de 300 m2 environ- Située à Vienne.
Pietrapolis Vienne, vous présente, 2.00 Kms de la Gare et du Centre Ville de Vienne, maison de famille, en pierres, élevées sur 3 niveaux. 5 Chambres, véranda, piscine, grande terrasse de 80 m2, sans aucun vis à vis, exposée Sud. Local indépendant de 34 m2 avec point d'eau et toilettes. Double garage permettant de stationner 6 véhicules, cave. Lumineuse et généreuse en volumes, elle conviendra parfaitement à une famille en quête d'espaces et d'intimité.
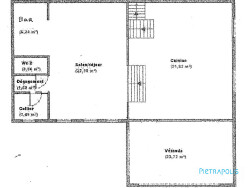
Au rez-de Jardin : - Cuisine ouverte équipée et aménagée avec vue sur verdure - Salle à manger / Séjour avec cheminée foyer fermée et vue sur terrasse et piscine - Petit coin bar taillé dans la roche - Véranda 30 m2 (non chauffée, possibilité d'installer clim réversible ou poêle) - Toilettes indépendants et espace rangements - Espace piscine 7.5 x 4 + terrasse de 80m2 refaite avec étanchéité en juillet 2025, abris terrasse de 15m2 plus accès aux 3 espaces verts.
1er Niveau : - Chambre Parentale de 37.00 m2 avec sa salle de bains - Dressing de 8m2 - Espace buanderie avec chaudière à gaz de ville - Dégagement donnant accès terrasse extérieure
2ème Niveau : - Palier aménagé en coin lecture - Chambre de 17 m2 (Bureau actuellement) - Double chambre de 27m2 avec placards (Possibilité de récréer très facilement 2 chambres) - Espace ouvert de 7.50 m2 (futur bureau) - Salle de bains avec baignoire - Toilettes indépendants
3ème Niveau : - Grande chambre de 33m2 avec accès aux combles de 40 m2 à aménager
Rez-de-Chaussée : - Accès local indépendant (Fenêtres et portes changées en 2021 en aluminium brossé) possibilité facile de pouvoir en faire un studio avec rentabilité locative - Garage de 90 m2 avec système de filtration pour la piscine (sol en terre battue) - Cave
Les + à savoir : - Toiture, tuiles et cheneaux refaits en 2023 (27 500) - Huisseries bois doubles vitrages et volets roulants solaires en 2018 (18 000) - Chaudière central Gaz de ville (2021) - Eau chaude identique chauffage - Cheminée foyer fermée - Peintures en 2020 - Double portes de garages automatique en aluminium 2023 (5 000) - Etanchéïté terrasse et carrelage 2023 (33 000 ) - Piscine 7.5x4 avec terrasse de 80 m2 - Sols parquet, carrelage et sols stratifiés - DPE en D (Septembre 2025) - Four à pizzas - Véranda - Exposée plein SUD
Pour visiter ce bien atypique, où, des possibilités d'aménagement restent encore disponibles, prenez contact avec Christel MONTAGNY, par téléphone au 06.82.37.31.27 ou par mail : c.montagny@pietrapolis.fr - Agent commercial en immobilier - EI - Inscrit au tribunal de commerce de Vienne sous le n° 485086532-
Honoraires à la charge du vendeur. Classe énergie D, Classe climat D Montant moyen estimé des dépenses annuelles d'énergie pour un usage standard, établi à partir des prix de l'énergie de l'année 2021 : entre 2450.00 et 3100.00 . Les informations sur les risques auxquels ce bien est exposé sont disponibles sur le site Géorisques : georisques.gouv.fr.