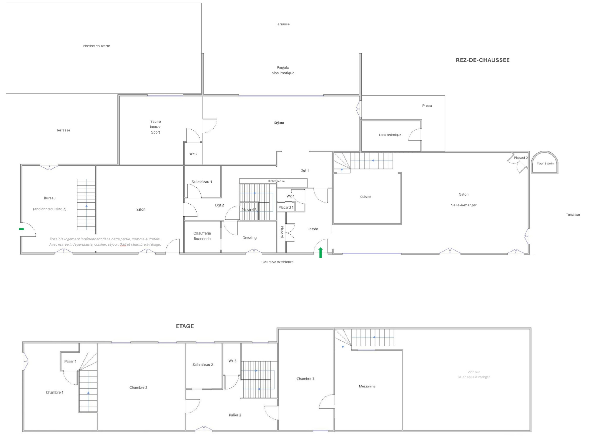
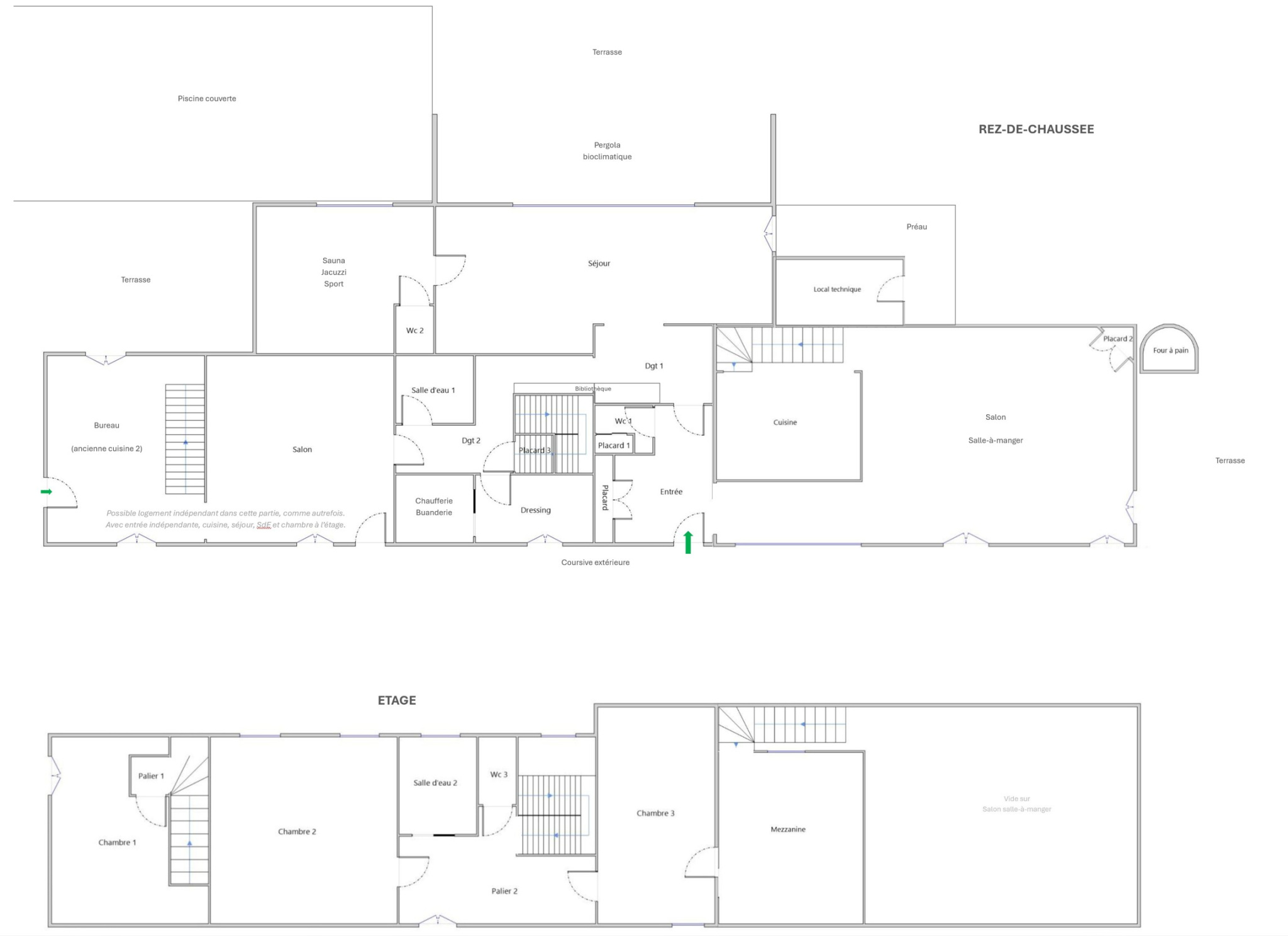
À Nort-sur-Erdre, cette MAISON DE FAMILLE en pierres dont le caractère se révèle dès les premiers instants. Ici, l'authenticité n'est pas un effet de style : elle se ressent dans chaque volume, chaque perspective, chaque espace. Cette bâtisse d'environ 250 m2, posée sur plus de 1 850 m2 de verdure, offre un agencement atypique, pensé pour accueillir des modes de vie variés et répondre aux besoins de chacun.
Les pièces de vie se succèdent avec une élégance naturelle : un séjour lumineux, une salle à manger conviviale, un salon plus intimiste ouvert sur la piscine, une cuisine contemporaine, et un espace bibliothèque avec poêle à bois Godin et sa mezzanine qui invite à la lecture, à la création ou simplement au calme. L'étage, composé d'un espace jeux et de trois chambres, dessine un univers nuit chaleureux et indépendant. Une extension rénovée récemment vient enrichir le potentiel déjà remarquable de cette maison. Elle propose deux chambres supplémentaires, dont une avec son propre accès extérieur et sa douche, un hall d'entrée et le pool-house de la piscine. Une configuration idéale pour recevoir sans se gêner, mais aussi pour créer une véritable harmonie dans les FAMILLES RECOMPOSÉES, pour imaginer un CO-LIVING respectueux de l'intimité de chacun, ou encore pour rapprocher plusieurs générations sous un même toit tout en préservant la liberté de tous.
À l'extérieur, le jardin clos se déploie en plusieurs ambiances, entre dépendances en pierre, carport et zones encore libres, prêtes à devenir potager, atelier ou aire de jeux selon les envies. La piscine, chauffée et à l'abri des regards, promet de longues soirées d'été en toute tranquillité. Ce bien rare rassemble authenticité, volumes, charme et possibilités d'aménagement qui en font une véritable maison de vie, adaptée aux projets qui évoluent, aux familles qui grandissent et aux liens que l'on chérit. A 2,5 km des services et écoles et proche de la rigole alimentaire, les balades à vélo seront au programme! DPE : C (135) GES : A (4) A VOIR RAPIDEMENT ! Honoraires : 3,78% TTC de 476 000 EUR (prix de vente honoraires exclus). Soit 494 000EUR honoraires inclus. Honoraires à la charge de l'acquéreur. Nos honoraires sont consultables sur : www.noovimo.fr. Ref : NCD-0025322 Votre agent indépendant Noovimo inscrit au RSAC de Nantes sous le No 508 081 858 Les informations sur les risques auxquels ce bien est exposé sont disponibles sur le site Géorisques : www.georisques.gouv.fr . - Annonce rédigée et publiée par un Agent Mandataire -
Maison de village
250 m²
1 889 €
27 m²
1500 m²
8
5
2
2
3.79 %
375 € / mois
1900
Sud
6
Oui
Consommations énergétiques
Logement économe
135
Logement énergivore (kWhEP/m2/an)
Émissions de gaz à effet de serre
Faible émission de GES
4
Forte émission de GES(kgeqCO2/m2/an)
Contact CASSARD
Contacter gratuitement à l'aide du formulaire ci-dessous.