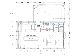
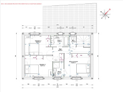
CREMIEU INTRAMUROS EN EXCLUSIVITE, votre agence SUBLIMO vous propose de devenir les heureux propriétaires de cette charmante villa, exceptionnellement rare et prisée sur la citée médiévale. Ne passez pas à côté, soyez réactif ! Environ 105 m2 habitables sont prévus sur 2 niveaux, répartis au rez de chaussée d'un spacieux volume de pièce à vivre de plus de 46m2 intégrant une cuisine américaine,espace rangement mural, un grand cellier et un wc. A l'étage, 3 chambres dont une suite parentale avec salle d'eau, une salle de bains et un wc, dégagement avec placard mural. Vous disposerez d'un garage de 25m2, et d'une aire de stationnement dans la cour, vous profiterez également d'une parcelle de 660 m2, verdoyante et cloturée sur 3 côtés. Prestations: Volets roulants électriques, double vitrage, porte de garage sectionnelle motorisée, carrelage 60x60 dans la pièce de vie, enduit finition gratté, climatisation, sanitaires baignoire, douche et meubles vasques inclus, Pour toute information complémentaire, contactez-nous au 04 72 05 84 87.
105.41 m²
3 273 €
46 m²
660 m²
4
3
1
1
2
01/07/2025
2025
Sud
Ouest
2
1
Consommations énergétiques
Logement économe
60
Logement énergivore (kWhEP/m2/an)
Émissions de gaz à effet de serre
Faible émission de GES
5
Forte émission de GES(kgeqCO2/m2/an)
Contact BELLET
Contacter gratuitement à l'aide du formulaire ci-dessous.