Baobab vous propose en exclusivité cette maison individuelle de 124m² située à Vimines au tarif de 469 900. (Forfait Baobab de 9900 TTC inclus)
Maison individuelle de 2012 implantée sur une parcelle de 550m², au hameau des Berlioz, avec jardin, terrasse et sous-sol complet, à 5 minutes du centre-ville de Cognin.
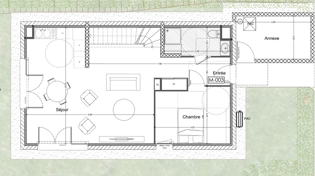
Au Rez de Chaussée : Entrée avec placard, sous-sol complet avec double-garage carrelé, buanderie et cellier.
Au 1er étage : Placard mural, cuisine aménagée et équipée ouverte sur une belle pièce de vie d'environ 40m² avec accès direct à la terrasse et au jardin ainsi qu'un WC indépendant avec lave-main.
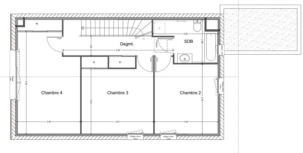
Au 2ème étage : 4 chambres avec placards dont une suite parentale avec dressing et salle d'eau ainsi qu'une salle de bains et un WC indépendant.
Les exterieurs : Très belle terrasse avec vue sur la cascade de Saint-Cassin ainsi qu'un jardin entièrement plat, clos et arboré.
DPE: D/B Taxe Foncière: 1427
Les équipements : Chauffage électrique, poêle à bois, volets bois, porte de garage motorisée, système d'alarme, fibre optique...
Avis Baobab : Au calme mais pas isolée, cette maison vous offrira tout le confort nécessaire à une vie familiale paisible, avec ses nombreux rangements, ainsi que sa terrasse et son jardin. Le plus : Ce grand sous-sol qui offre de nombreuses possibilités de rangements et stockage supplémentaires.
Baobab immobilier Vous bougez, nous aussi !
Honoraires à la charge du vendeur. Classe énergie D, Classe climat B Montant moyen estimé des dépenses annuelles d'énergie pour un usage standard, établi à partir des prix de l'énergie de l'année 2023 : entre 1990.00 et 2730.00 . Les informations sur les risques auxquels ce bien est exposé sont disponibles sur le site Géorisques : georisques.gouv.fr.