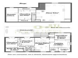
CHEVILLON SUR HUILLARD (45700) ! A 10mn de MONTARGIS et 1h30 de PARIS venez découvrir cette belle maison familiale (sur vide sanitaire) d'environ 154m2 habitable offrant au rez-de-chaussée : entrée avec placard, salon/séjour lumineux avec cheminée, cuisine avec cellier et chaufferie attenants, bureau ou chambre, couloir desservant 2 chambres avec placard et porte-fenêtre donnant sur la terrasse, salle de bains, dégagement avec placard et WC avec lave-mains. A l'étage : grande pièce d'environ 53m2 à aménager selon vos envies ou vos besoins, chambre avec placards et grenier attenant. A l'extérieur: garage double, cave en cul de loup, préau et agréable jardin arboré. Chauffage centrale fioul. Assainissement individuel. Le tout sur un terrain entièrement clos de 2512m2. Toiture en bon état ! A prévoir : travaux de rafraichissement et d'amélioration de la performance énergétique. Pour plus d'information ou pour prendre un rendez-vous de visite n'hésitez pas à contacter l'agence. Visite virtuelle offerte! 'Les informations sur les risques auxquels ce bien est exposé sont disponibles sur le site Géorisques https://www.géorisques.gouv.fr'
154 m²
1 292 €
28 m²
2512 m²
6
4
1
1
1971
2
Oui
Consommations énergétiques
Logement économe
296
Logement énergivore (kWhEP/m2/an)
Émissions de gaz à effet de serre
Faible émission de GES
83
Forte émission de GES(kgeqCO2/m2/an)
Contact CHU
Contacter gratuitement à l'aide du formulaire ci-dessous.