Maison individuelle de 182m2 sur 1170m2 de terrain
Metz-Tessy 74370
0
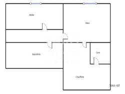
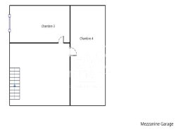
Epagny Metz-Tessy, nous vous présentons cette maison de 1997, de type 8 et d'une surface de 182m2 (238m2 utiles) sur un terrain de 1170m2 dans un environnement calme et arboré. Elle se compose d'une pièce de vie lumineuse de 50m2, de 7 chambres, de deux salles de bains, de 2 WC, ainsi qu'un garage isolé et chauffé de 22m2 Vous bénéficierez d'un sous-sol isolé et chauffé avec une buanderie, une chaufferie, 2 salles de jeux, une cave et un atelier. Les menuiseries sont en bois et aluminium, le chauffage est au gaz par radiateur et le portail est électrique. Prévoir travaux de rafraîchissement: sols, murs, isolations, plomberie, électricité, menuiseries. Vous pourrez redonner une seconde jeunesse à cette maison située dans une commune recherchée. Vidéos et photos complémentaires sur demande. SAS REVO IMMO - CHAGNARD Valérian EI - O603 896 052 - Plus d'informations sur www.revo.immo (réf. 4901051165). Agent commercial RSAC BOURG-EN-BRESSE 880 152 863 - Prix TTC et Honoraires à charge vendeur TTC - Les informations sur les risques auxquels ce bien est exposé sont disponibles sur le site Géorisques : https://www.georisques.gouv.fr/.
182 m²
3 791 €
50 m²
1170 m²
8
7
2
2
1997
Oui
1
Consommations énergétiques
Logement économe
392
Logement énergivore (kWhEP/m2/an)
Émissions de gaz à effet de serre
Faible émission de GES
76
Forte émission de GES(kgeqCO2/m2/an)
Contact SAS REVO IMMO
Contacter gratuitement à l'aide du formulaire ci-dessous.