Maison mitoyenne 4 pièces - 90,66 m2- Brison Saint Innocent
Brison-Saint-Innocent 73100
0
Honoraires à la charge du vendeur.
À deux pas d'Aix-les-Bains, découvrez cette villa récente (RE 2020) de 90,66 m2 habitables (142 m2 utiles) sur un terrain de 655 m2, offrant un cadre de vie privilégié. Agencement :
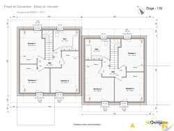
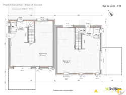
- Rez-de-chaussée : Pièce de vie lumineuse de 41 m2 avec baies vitrées, entrée avec rangements, cuisine à aménager, WC. - Étage : 3 chambres avec dressings, salle de bains (baignoire), WC. - Sous-sol : Grand garage de 51,30 m2.
Prestations : o Chauffage PAC air/eau (plancher chauffant dans la pièce de vie, radiateurs dans les chambres). o Menuiseries PVC, volets roulants PVC/alu. o Carrelage et parquet, murs en briques de 20 cm. o Terrasse de 14,52 m2, jardin. Le bien est actuellement à l'état de projet et n'a pas encore été édifié. Un bien lumineux aux belles prestations, dans un secteur recherché ! Dossier complet sur demande.
Une annonce de Peak immobilier Pour plus d'informations, contacter : Stéphane MAURIN : O6 17 17 34 79 Agent Commercial enregistré sous le no 850 292 731
90.66 m²
4 754 €
655 m²
4
3
1
1
Sud
Ouest
2
1
Contact PEAK IMMOBILIER Aix-les-Bains
Contacter gratuitement à l'aide du formulaire ci-dessous.