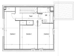
La maison est située au Coeur de Myans, à proximité des commerces, écoles et transports, je vous propose à la vente cette ravissante Maison de type T5 de 123,60m² construite sur un terrain de 230m², saura vous séduire par sa situation, elle est composée d'un séjour avec sa cuisine américaine donnant sur un très joli jardin , une chambre et une salle d'eau avec Wc. A l'étage, trois chambres, une salle de bains ainsi qu'un WC indépendant. La maison est vendue avec un garage et une place de parking. Bâtiment basse consommation Contactez Grégory pour plus d'informations au O6.69.26.64.26 Visuel non contractuel Copropriété de 32 lots - dont 32 lots habitation. Charges annuelles : 250 euros.