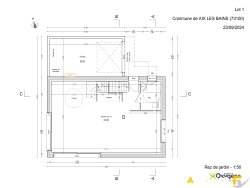
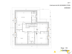
Dans un environnement résidentiel calme à Aix-les-Bains, découvrez ce projet de construction de deux maisons individuelles avec permis de construire purgés de tout recours, permettant un lancement rapide du projet. Deux lots disponibles : Lot 1 : maison d'environ 114 m2 habitables implantée sur un terrain de 476 m2 Lot 2 : maison d'environ 120 m2 habitables implantée sur un terrain de 542 m2 Les maisons proposeront : o 3 à 4 chambres selon vos besoins o Grande pièce de vie lumineuse ouverte sur le jardin o Plans personnalisables o Construction conforme RE 2020 Prestations de qualité : o Plancher chauffant rafraîchissant au rez-de-chaussée o Chauffage/climatisation à l'étage o Construction en briques o Large choix de finitions (carrelage grand format, faïence...) o Terrasse prête à aménager o Accès et cour en graviers o Clôture périphérique Situation idéale : À proximité du centre d'Aix-les-Bains Accès rapide à l'autoroute Aix-les-Bains Nord Le prix de vente comprend les frais de notaire. Un projet idéal pour réaliser une maison neuve personnalisée dans un secteur recherché du bassin aixois. Une annonce de Peak immobilier Pour plus d'informations, contacter : Stéphane MAURIN : O6 17 17 34 79 Agent Commercial enregistré sous le no 850 292 731
114 m²
4 957 €
45 m²
476 m²
4
3
1
1
2
2026
Sud
2
1
1
Oui
Contact PEAK IMMOBILIER Aix-les-Bains
Contacter gratuitement à l'aide du formulaire ci-dessous.