Honoraires à la charge de l'acquéreur (Prix hors honoraires : 315000 euros).
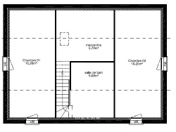
Vallée des Gaves - Maison neuve de type 4, garage et terrain autour de 430m2. Dans un petit quartier résidentiel, projet de construction d'une maison neuve. Frais de notaire réduits. Maison de type 4 avec garage et terrain clos d'une surface de 430m2. D'une surface au sol d'environ 67m2 + combles aménagés pour une surface totale habitable de 98m2. Plancher hourdi entre les niveaux + vide sanitaire. Charpente traditionnelle avec isolation par laine de verre soufflée et pose d'un écran sous toiture, ardoises naturelles. (suivant RT 2020). Menuiseries, baies vitrées coulissantes et volets roulants électriques en aluminium. Chauffage/climatisation réversible par une pompe à chaleur. Production de l'eau chaude sanitaire par ballon thermodynamique. Assainissement individuel de type micro-station. Livraison prévue à la fin du 1er trimestre 2027 terminée avec le choix des peintures, de la cuisine, des parquets et autres... Informations complémentaires sur demandes.
98 m²
3 367 €
37 m²
430 m²
4
3
1
1
1
4.76 %
2025
Sud
1
1
Oui
Oui
Oui
Consommations énergétiques
Logement économe
25
Logement énergivore (kWhEP/m2/an)
Émissions de gaz à effet de serre
Faible émission de GES
5
Forte émission de GES(kgeqCO2/m2/an)
Contact EPAGNOUX
Contacter gratuitement à l'aide du formulaire ci-dessous.