Secteur PIBESTE - Maison bigourdane de 116m2 + grange en pie
Argelès-Gazost 65400
0
Honoraires à la charge de l'acquéreur (Prix hors honoraires : 280000 euros).
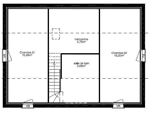
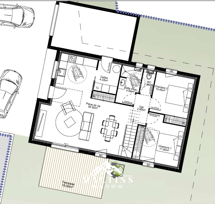
Secteur PIBESTE - Maison bigourdane de 116m2 + grange en pierres indépendante sur terrain de 417m2 A moins de 3 kms d'ARGELES, découvrez sans attendre cette maison édifiée en pierres et sa grange en pierres indépendante sur un terrain de 417m2 environ. Située dans un environnement au calme, ensoleillé, en plein coeur d'un petit village et exposée SUD-EST et offrant une vue dégagée sur les sommets. D'une surface au sol d'environ 72 m2 et 115m2 habitables sur les 2 niveaux, la maison d'habitation comprend en rez-de-chaussée : une pièce vie avec insert avec un coin cuisine, un salon, une véranda et une salle d'eau avec WC et une pièce chaufferie. A l'étage, mansardé : un couloir dessert 4 chambres dont 3 espaces nuits (inférieurs à 9m2), une pièce dressing et un WC avec lave mains. Les menuiseries sont en double vitrage aluminium avec volets bois et volets roulants électriques. Chauffage central au fuel + insert bois. Toiture en ardoises naturelles refaite il y a 10 ans environ. De plus la propriété dispose d'une grange en pierres indépendante, édifiée en pierres, avec couverture en ardoises récente et en très bon état. Elle est d'une superficie d'environ 31 m2 au sol, carrelé. Elle comprend un espace garage en rez-de-chaussée avec une salle d'eau/WC. L'étage, mansardé, comprend 2 chambres en pignons. Cette dépendance à terminer d'aménager qui pourrait être source de revenus locatifs ! Logement à consommation énergétique excessive : DPE classé en E. Montant estimé des dépenses annuelles d'énergie pour un usage standard : Entre 3470 EUR et 4780 EUR par an (Prix moyens des énergies indexés au 1er janvier 2023, abonnement compris). Visite et renseignements complémentaires sur demande.
116 m²
2 534 €
37 m²
417 m²
5
4
2
3
5.00 %
1900
Sud
Est
1
Oui
Consommations énergétiques
Logement économe
301
Logement énergivore (kWhEP/m2/an)
Émissions de gaz à effet de serre
Faible émission de GES
69
Forte émission de GES(kgeqCO2/m2/an)
Contact EPAGNOUX
Contacter gratuitement à l'aide du formulaire ci-dessous.