Je vous présente sur la commune de TRESSERVE (73100)
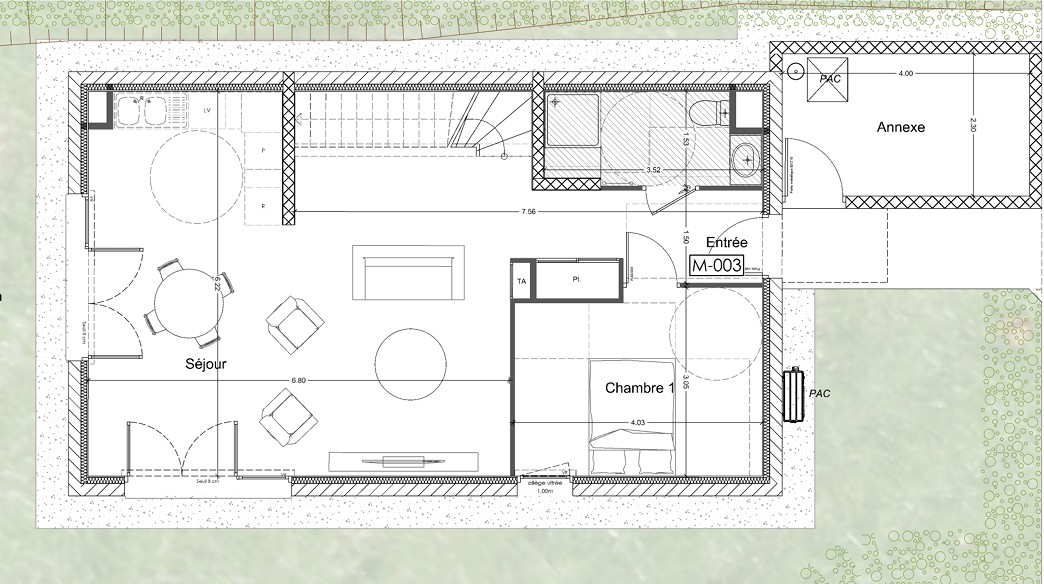
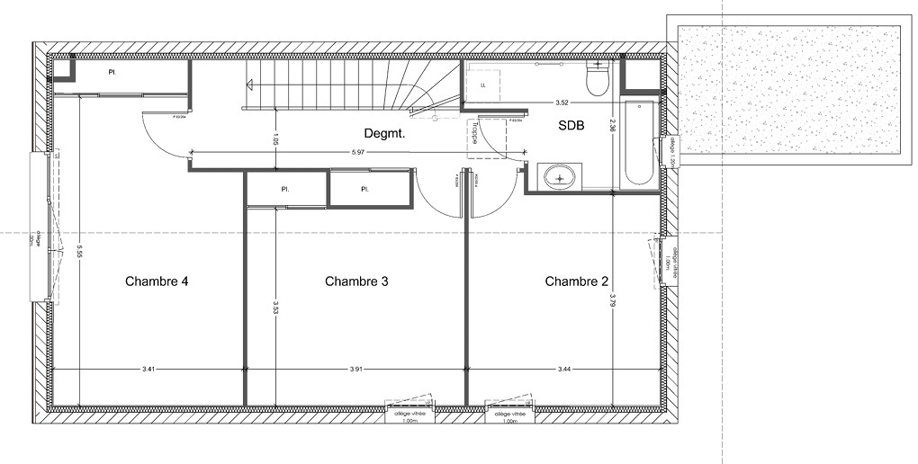
sur un terrain de 288m² maison de 112.90m² avec garage de 16.20m² ce bien se compose : d'une cuisine / sejour 34.25m² une chambre de 11.65m² une chambre de 11.35m² une chambre de 15.90m² une chambre de 11.10m² une dressing de 6.30m² une salle de bain de 6.85m² WC
pour plus d'informations n'hésitez pas a me contacter
Ref : FD311 Florence DORE 06.62.47.51.21 Les informations sur les risques auxquels ce bien est exposé sont disponibles sur le site Géorisques : www.georisques.gouv.fr Besoin d'une estimation ? Contactez notre équipe d'agent immobilier ! Découvrez tous nos biens à vendre (pour du off market n'hésitez pas à joindre Mr DORE) sur notre site internet www.golden-transaction.fr Gestion Airbnb et longue durée gérée par notre expert Mr RONDA. GOLDEN GESTION Conciergerie. Cette présente annonce a été rédigée par Florence DORE agent commercial en immobilier immatriculé au RSAC de Grenoble sous le numéro RCS 900 066 937
Honoraires à la charge du vendeur. Non soumis au DPE. Les informations sur les risques auxquels ce bien est exposé sont disponibles sur le site Géorisques : georisques.gouv.fr.