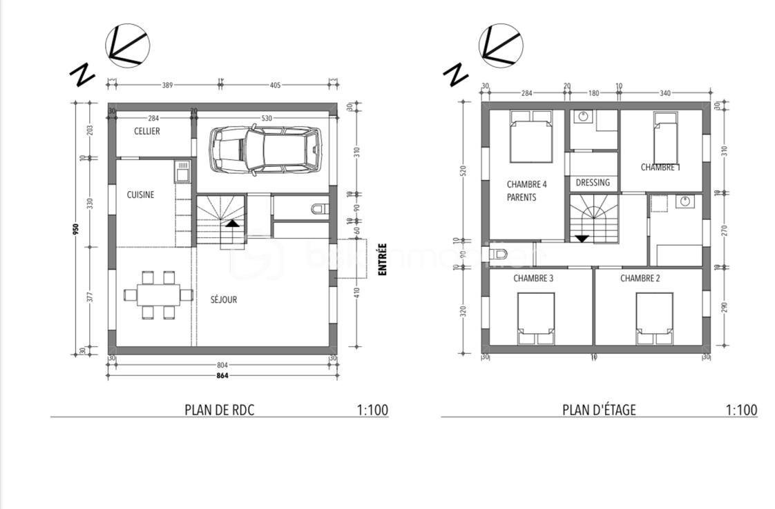
Situé dans le quartier calme et recherché Les Cottages, proche des écoles et des commodités, ce pavillon sans mitoyenneté est édifié sur sous-sol total. Il comporte un grand garage, une cuisine d'été, wc, salle d'eau. A l'étage, salon avec cheminée insert, salle à manger, 2 chambres avec possibilité d'en faire une 3è, cuisine aménagée équipée, salle de bain, wc séparés. Fenêtres double vitrage et volets roulants électriques commandés, alarme et caméras. La configuration permet de rentrer 2 véhicules sur le terrain en plus du garage. L'arrière de la maison contient une terrasse pour les moments entre amis et un abri de jardin .
Contactez-moi.
Cette annonce référence 229451 vous est présentée par votre agent commercial BSK Immobilier JEAN MARC RAISIN (EI) immatriculé au RSAC de BOBIGNY (93000) sous le numéro 85203399200011.
Prix du bien : 329 000,00 €
Les honoraires d'agence sont à la charge du vendeur.
A propos des performances énergétiques :
Date de réalisation du diagnostic énergétique : 20/10/2015
Score DPE : 290 kWhEP/m²/an
Score GES : 89 kgepCO2/m²/an
Les informations sur les risques auxquels ce bien est exposé sont disponibles sur le site Géorisques : www.georisques.gouv.fr
100 m²
3 290 €
310 m²
4
2
1
1
1955
Consommations énergétiques
Logement économe
290
Logement énergivore (kWhEP/m2/an)
Émissions de gaz à effet de serre
Faible émission de GES
89
Forte émission de GES(kgeqCO2/m2/an)
Contact IAD France - Jean-Marc RAISIN
Contacter gratuitement à l'aide du formulaire ci-dessous.