EXCLUSIVITÉ - 24130 LE FLEIX - OPPORTUNITÉ ENSEMBLE IMMOBILIER EN CENTRE BOURG - MAISON NEUVE - GARAGE - STUDIO + 3500 M² DE TERRAIN CONSTRUCTIBLE VIABILISE? 335 000 €
Frédéric Braun et effiCity, l'agence qui estime votre bien en ligne, vous propose cet ensemble immobilier situé au c?ur du charmant village de Le Fleix.
A 1h de Bordeaux, proche de BERGERAC (20 minutes).
A 20 minutes de l'autoroute A89 (Bordeaux / Lyon)
A 5 km de Sainte Foy la Grande (33) / hôpital, gare SNCF (ligne directe Bordeaux : 50 min)
Le village Le Fleix avec tous les services de proximité (pôle santé et pharmacie à 300 m, école, boucher, poste, épicerie).
Ce bien d'exception comprend une maison neuve, un grand garage indépendant avec un studio attenant, ainsi que 3 lots de terrains viabilisés, offrant de multiples possibilités d'aménagement.
DESCRIPTION DE L'ENSEMBLE :
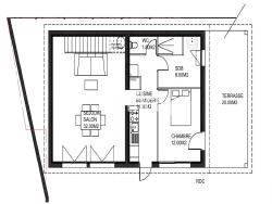
Maison neuve de plain-pied de 72 m² + 19 m² de terrasse couverte et isolée :
- 1 pièce de vie de 32 m² avec clim réversible été/hiver
- 1 chambre de 12 m²
- 1 mezzanine (avec velux et rideau occultant) de 10 m²
- 1 salle d'eau avec douche a l'italienne de 6 m²
- 1 cuisine équipée avec espace buanderie de 11 m²
- 1 toilette séparé
- 1 Terrasse couverte isolée de 19 m²
Volets roulants électriques avec menuiserie double vitrage.
L'année de construction récente de la maison assure un état général irréprochable, offrant à ses futurs habitants un cadre de vie moderne et confortable.
Bâtiment indépendant de 125 m² comprenant :
- 1 studio habitable de 45 m² (pièce de vie de 32 m² incluant la chambre, 1 salle d'eau de 8 m² et 1 entrée de 5 m²)
- 1 garage pour véhicule et autres avec portail d'entrée par l'arrière de 75 m²
- 1 espace couvert pour jacuzzi de 5 m²
Cette dépendance offre un espace supplémentaire idéal pour divers projets.
Terrain plat de 5 700 m² au total comprenant 3 lots constructibles (un de 1 500 m² et deux de 1 000 m² environ avec CU viabilisé (branchements déjà réalisés sur chaque lot Eau, électricité, téléphone, tout à l'égout)
Chemin d'accès unique avec portail électrique de 5 mètres de long coulissant sur rail
L'entrée de cet ensemble se fait par route secondaire
Avec cette parcelle entièrement clôturée et arborée (jolie verger d'une quinzaine d'arbres fruitiers) avec puits et pompe, cette propriété garantit intimité et tranquillité, sans aucun vis-à-vis.
Très belle opportunité pour investisseur ou particulier
ON AIME :
- la position privilégiée dans le village au calme et sans vis-à-vis
- la surface du terrain permettant un potentiel d'aménagement supplémentaire selon les projets
Taxe foncière : 1381 €/an.
A venir découvrir !
Pour de plus amples informations, contacter Frédéric BRAUN au 06 62 88 62 60 ou par mail : fbraun@efficity.com
Les informations sur les risques auxquels ce bien est exposé sont disponibles sur le site Georisque : georisques. gouv. fr
Frédéric Braun - EI - est Agent Commercial mandataire en immobilier, immatriculé au Registre Spécial des Agents Commerciaux du Tribunal de Commerce de Bergerac sous le n°485106363.
Siège social du mandant : effiCity, 48 avenue de Villiers - 75017 PARIS - Société par Actions Simplifiée, société au capital de 132 373,05 euros, immatriculée au RCS Paris 497 617 746 et titulaire de la Carte professionnelle CPI 7501 2015 000 002 025 - CCI Paris IDF - Caisse de Garantie : GALIAN Assurances 89 rue de la Boétie 75008 Paris
200 m²
1 675 €
32 m²
5700 m²
5
3
2
1
2
2022
Sud
Oui
Oui
Consommations énergétiques
Logement économe
146
Logement énergivore (kWhEP/m2/an)
Émissions de gaz à effet de serre
Faible émission de GES
4
Forte émission de GES(kgeqCO2/m2/an)
Contact M. Frédéric Braun
Contacter gratuitement à l'aide du formulaire ci-dessous.