*** SOUS COMPROMIS***
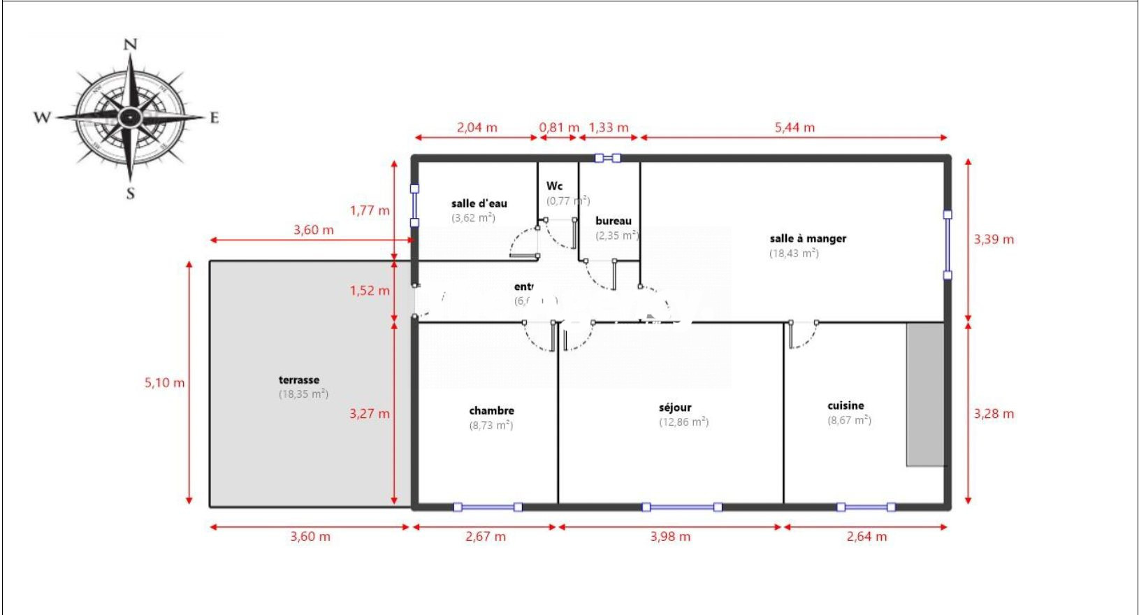
Venez découvrir cette jolie maison avec piscine de plus de 116m² sur une parcelle de 261m² au c?ur du village de Plan de Cuques !
Cette maison dispose au rez de chaussée d'un séjour / salle à manger de 33m² avec cheminée, d'une cuisine séparée de 13m², d'un WC avec point d'eau sous l'escalier ainsi que d'une suite parentale avec douche de 23m².
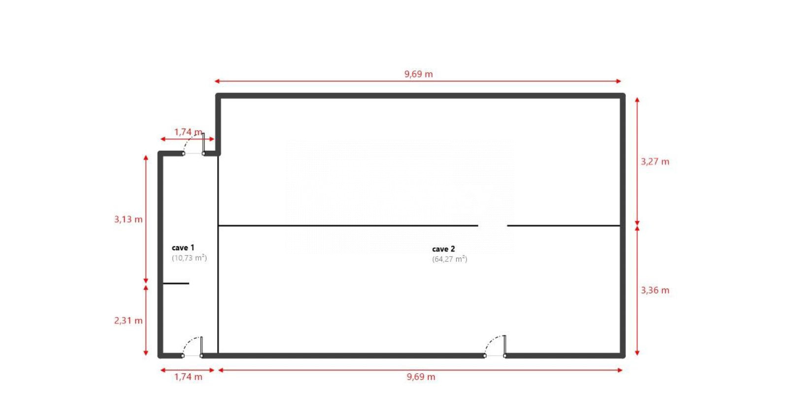
L'étage quand à lui, se compose d'un dégagement qui ouvre distinctement sur : 2 chambres, l'une de 10m² avec un dressing de 7m², l'autre de plus de 12m².
Ainsi qu'une chambrette/bureau de 7.5m², une salle de bain avec baignoire d'angle de 5.36m² et un WC séparé.
L'extérieur est joliment agencé de sorte a ce que vous ayez plusieurs espaces distincts, un coin piscine, un coin terrasse ombragée, un coin cabanon entouré de verdure..
La maison dispose de prestations soignées : panneaux solaires exposés plein sud sur la toiture, piscine ( skimmer et liner neufs ), double vitrage PVC, chaudière neuve..
Venez réaliser le projet de vos rêves en ayant la proximité à pied du marché de plan de cuques,de toutes les commodités et des transports en communs !!! ( LR )A visiter rapidement, contactez-nous pour organiser une visite Léo REALLON : CLAIRIMMO Chateau Gombert - 13 rue Centrale 13013 CHATEAU GOMBERT -Tél : 04 91 502 502 email : agencemarseille13@clairimmo.email RCS 851 986 620 Agent commercial indépendant du réseau national Clairimmo N° RSAC : 922 266 507
116 m²
3 448 €
261 m²
5
4
1
1
2
1930
Ouest
Consommations énergétiques
Logement économe
244
Logement énergivore (kWhEP/m2/an)
Émissions de gaz à effet de serre
Faible émission de GES
53
Forte émission de GES(kgeqCO2/m2/an)
Contact Clairimmo Chateau Gombert
Contacter gratuitement à l'aide du formulaire ci-dessous.