Honoraires à la charge de l'acquéreur (Prix hors honoraires : 330000 euros).
' FAITES VOS PLANS '
13380 PLAN DE CUQUES Les Blacassins / La Tirane
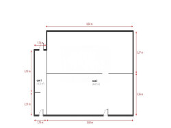
Sur une rare et confortable parcelle de 1 190m², pouvant accueillir plusieurs véhicules, une maison individuelle de 155m² au sol en R+1 Avec vue dominante et dégagée, sans vis-à-vis Avec box simple ouvert sur rue
À RÉNOVER TOTALEMENT AVEC FORT POTENTIEL d'aménagement.
Dans une impasse calme mais à proximité de nombreux commerces et commodités du quotidien, des écoles et des transports en commun.
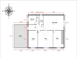
The Agency vous propose en exclusivité une maison réunissant deux plateaux de 62m² habitables dont un brut prêt à être aménagé. Celle-ci dispose d'une triple exposition Est-Sud-Ouest, avec un jardin d'environ 1 115m² très verdoyant.
La maison est actuellement composée d'une entrée, d'un salon / séjour, d'une cuisine indépendante, de deux chambres, d'un bureau, d'une salle d'eau et d'un WC indépendant.
La maison est équipée de la climatisation réversible dans l'entrée et le salon / séjour.
La parcelle est sécurisée par un portail automatique avec stationnement aisé.
Un box simple de 12m² est attenant à la propriété.
Très beau potentiel avec de gros travaux de rénovation à prévoir.
Merci de venir avec vos entrepreneurs et/ou architectes afin d'être conseillés et réactifs sur la rénovation et modernisation de votre futur bien.
Taxe foncière : environ 1 800.00 /an Pas de copropriété
'The Agency, La Révolution Immobilière...'
Honoraires inclus de 6.03% TTC à la charge de l'acquéreur. Prix hors honoraires 330 000 . Classe énergie D, Classe climat B Montant estimé des dépenses annuelles d'énergie pour un usage standard : entre 1120.00 et 1580.00 sur les années 2021, 2022 et 2023 (abonnements compris). Les informations sur les risques auxquels ce bien est exposé sont disponibles sur le site Géorisques : georisques.gouv.fr.
Votre conseiller The Agency : Marion CRISTIANO Agent commercial (Entreprise individuelle)
155 m²
2 257 €
1190 m²
3
2
1
1 (séparé)
6.03 %
1950
Est
Oui
1
1
Oui
Oui
Oui
Consommations énergétiques
Logement économe
231
Logement énergivore (kWhEP/m2/an)
Émissions de gaz à effet de serre
Faible émission de GES
7
Forte émission de GES(kgeqCO2/m2/an)
Contact The Agency
Contacter gratuitement à l'aide du formulaire ci-dessous.