L'Agence MON BIEN A LA MER, Spécialiste du neuf en Bord de Mer, vous présente :
TRAVAUX EN COURS : rare : petite résidence de standing à 150m de la Place centrale de Pornichet et 300m du Port/plage. Livraison fin 2026. Frais de notaire réduits.
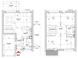
Maison T5 de 90m2 : Séjour de 30m2, 4 Chambres, une salle de bains, une salle d'eau, deux wcs. Garage, jardinet engazonné et clôturé. Livrée tout finie (sauf cuisine).
Nous Consulter
Honoraires à la charge du vendeur. Non soumis au DPE. Les informations sur les risques auxquels ce bien est exposé sont disponibles sur le site Géorisques : georisques.gouv.fr.
Votre conseiller MON BIEN A LA MER : Gérant - .fr MON BIEN A LA MER Carte T CPI 2201 2018 000 025 040 RCP ACM IARD B1 7025278
Maison contemporaine
90 m²
7 322 €
30 m²
5
4
1
1
2 (séparés)
Oui
Contact mon bien à la mer
Contacter gratuitement à l'aide du formulaire ci-dessous.