Maison THOMERY 170m² sur un terrain de 991 m² - 7 chambres
Thomery 77810
0
Honoraires à la charge du vendeur.
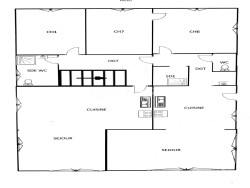
THOMERY - Maison individuelle de 170 m² sur un terrain de 991 m². Parking privatif pour trois voitures avec portail électrique. DPE en D. . Cette maison, entièrement rénovée en 2012, a la particularité d'être divisée en deux espaces : maison de 120 m² de type F6 sur 2 niveaux et un F3 de 50m² attenant permettant d'exercer une profession libérale ou de loger un membre de sa famille. Les deux espaces peuvent être réunis facilement (cloisons creuses) pour créer un rez de chaussée de 100m² au sol. Plans ci-joints. . La maison se compose d'une grande pièce à vivre avec un salon/ salle à manger de 33m² avec une cheminée dotée d'un insert, d'une cuisine ouverte, le tout donnant accès à une terrasse carrelée orientée Sud Ouest, une chambre de 10m², une salle d'eau avec wc. . A l'étage : une suite parentale de 12 m² avec salle d'eau et wc indépendant, une chambre de 17m² et une autre de 10m² , un bureau ou chambre d'appoint de 8m², une salle d'eau avec wc, un autre wc sur le palier et deux cabines douches. . Le F3 attenant se compose d'une grande pièce à vivre avec séjour, salle à manger donnant accès à la terrasse orientée Sud Ouest, une cuisine aménagée et équipée, une salle d'eau, un wc indépendant, et deux chambres côté jardin arrière. . Double vitrage partout avec volets alu électriques, une grande remise au fond du jardin pour stocker ou bricoler et un grand en chalet en bois, idéal pour recevoir des amis, complètent ce bien. Chauffage électrique. Grande cave en sous-sol avec coin chaufferie. Assainissement conforme. .
Honoraires à la charge du vendeur. Classe énergie D, Classe climat C Montant moyen estimé des dépenses annuelles d'énergie pour un usage standard, établi à partir des prix de l'énergie de l'année 2023 : entre 2690.00 et 3700.00 . Les informations sur les risques auxquels ce bien est exposé sont disponibles sur le site Géorisques : georisques.gouv.fr.
170 m²
2 471 €
33 m²
991 m²
9
7
4
5
1965
Sud
Ouest
Oui
3
Consommations énergétiques
Logement économe
202
Logement énergivore (kWhEP/m2/an)
Émissions de gaz à effet de serre
Faible émission de GES
16
Forte émission de GES(kgeqCO2/m2/an)
Contact DLV Immo
Contacter gratuitement à l'aide du formulaire ci-dessous.