Maison tout finie indépendante / village Senior / 300m Mer
Perros-Guirec 22700
0
Honoraires à la charge du vendeur.
L'agence 'MON BIEN A LA MER', spécialiste de l'immobilier neuf sur les côtes Bretonnes, vous présente :
Concept Exclusif Village seniors : 20 à 30 maisons indépendantes, et un local commun avec conciergerie (animations, services...). Maisons Bois visant DPE A, Pompe à chaleur, livrées tout équipées et finies. Frais d'entretien et chauffage très réduits. Frais de copropriété et de conciergerie : 150 à 170 euros par mois.
Superbe environnement : PERROS GUIRREC, 300m Plage de Trestrignel et 500m Centre de Perros-Guirec. Environnement résidentiel, calme, tout à pied.
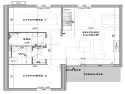
Cette Maison T3 est livrée équipée (sauf cuisine en option) : peintures, salle de bains, sols. Elle comprend : - Séjour traversant 33,35m2, terrasse 7m2, entrée avec placard - Deux chambres 11,8-10,65m2 - Salle d'eau douche à l'italienne meuble vasque sèche serviette, wc séparé, coin buanderie Parking
Nous Consulter pour plus d'infos.
Honoraires à la charge du vendeur. Dans une copropriété de 25 lots. Aucune procédure n'est en cours. Non soumis au DPE. Les informations sur les risques auxquels ce bien est exposé sont disponibles sur le site Géorisques : georisques.gouv.fr.
Votre conseiller MON BIEN A LA MER : Gérant - .fr MON BIEN A LA MER Carte T CPI 2201 2018 000 025 040 RCP ACM IARD B1 7025278
Maison contemporaine
63.75 m²
5 255 €
33 m²
3
2
1
1 (séparé)
1
1
Oui (25 lots)
Contact mon bien à la mer
Contacter gratuitement à l'aide du formulaire ci-dessous.