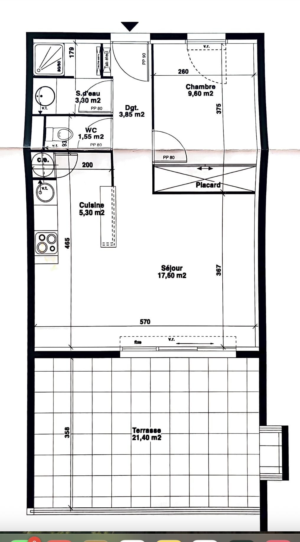
A VENDRE - Rare! A Montpellier, au coeur du quartier très prisé des Beaux-arts, Rue Marie Caizergues, bel appartement T2 de 35m², entièrement rénové, dans une petite copropriété d'un étage seulement. Cet appartement se compose d'une agréable pièce de vie exposée Sud avec cuisine US équipée, de toilettes indépendantes avec lave-mains, d'un coin nuit avec grande chambre de plus de 14m² permettant un coin dressing ou bureau, d'une salle d'eau avec emplacement lave-linge. Faibles charges, pas de perte de place et bon agencement. Idéalement situé à proximité du tram, des commerces, du centre-ville, des infrastructures sportives et des commodités, dans un quartier offrant une vie culturelle et de quartier très appréciable. A visiter sans tarder!!! Contact : Gaëlle Cohen 06 25 59 51 08. Prix : 139 000 FAI (honoraires d'agence charge vendeur déjà inclus dans le prix).
Honoraires à la charge du vendeur. Dans une copropriété de 6 lots. Aucune procédure n'est en cours. Classe énergie F, Classe climat C. Logement à consommation énergétique excessive. Montant moyen estimé des dépenses annuelles d'énergie pour un usage standard, établi à partir des prix de l'énergie de l'année 2021 : 800.00 . Date de réalisation du DPE : 19-04-2016. Les informations sur les risques auxquels ce bien est exposé sont disponibles sur le site Géorisques : georisques.gouv.fr.
Carte pro. 34022018000029650
35.05 m²
3 966 €
16 m²
2
1
1
1 (séparé)
45.00 € / mois
1930
Sud
Oui (6 lots)
Consommations énergétiques
Logement économe
336
Logement énergivore (kWhEP/m2/an)
Émissions de gaz à effet de serre
Faible émission de GES
19
Forte émission de GES(kgeqCO2/m2/an)
Contact
Contacter gratuitement à l'aide du formulaire ci-dessous.