Appartement 2 pièces 38,41 m2 Montpellier (entre Estanove et Ovalie) Idéal investisseur Montpellier Quartier Estanove / Ovalie Dans une résidence récente et sécurisée de 2012, découvrez ce T2 de 38,41 m2 avec terrasse et parking en sous-sol, vendu loué, idéal pour un investissement locatif sécurisé ou en résidence principale en Aout 2026. Caractéristiques :
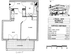
Surface habitable : 38,41 m2
Pièces : séjour lumineux + chambre séparée
Extérieur : terrasse privative
Stationnement : place de parking en sous-sol
Résidence : moderne (2012), sécurisée
Localisation :
Proche commerces et transports
6 minutes à pied de l'arrêt de tram Estanove Ligne 5 (mise en service en décembre 2025)
Informations financières :
Bien vendu loué
Bail en cours jusqu'au 04/08/2026
Loyer actuel : 444,72 EUR HC + 56 EUR provisions sur charges
Soit un total de 500,72 EUR CC / mois
Atouts : investissement clé en main, locataire déjà en place, rentabilité immédiate, futur atout mobilité avec la ligne 5 du tram. Pour plus d'informations ou organiser une visite, contactez Lionel AGENCE L'Atelier de l'Immo. 06 87 61 43 08
38.41 m²
2 734 €
16 m²
2
1
1
1
2 sur 4
55 € / mois
2012
Ouest
Oui
1
1
Oui
Oui (134 lots)
Consommations énergétiques
Logement économe
132
Logement énergivore (kWhEP/m2/an)
Émissions de gaz à effet de serre
Faible émission de GES
3
Forte émission de GES(kgeqCO2/m2/an)
Contact RESEAU EXPERTIMO JACOU
Contacter gratuitement à l'aide du formulaire ci-dessous.