Les charges de location sont prévisionnelles mensuelles avec régularisation annuelle.
La part des honoraires pour la réalisation de létat des lieux de ce bien est de 118 euros.
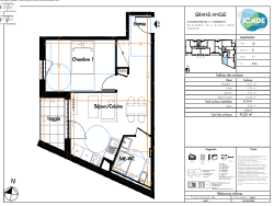
A MULHOUSE, dans la résidence GRAND ANGLE, nous vous proposons ce T2 de 39,39 m2 situé au premier étage avec ascenseur. Il se compose d'une entrée avec placard, d'un séjour cuisine avec accès à la loggia de 3,86 m2, salle d'eau avec WC ainsi que d'une chambre. Chauffage et eau chaude collectif au gaz. Entretien parties communes, entretien ascenseur, compris dans les provisions sur charges mensuelles et donnant lieu à une régularisation annuelle. Informations financières : Loyer 510EUR /mois Provisions/charges : 98EUR/ mois (avec régul. Annuelle), comprenant l'eau froide, l'eau chaude, le chauffage et les charges communes. Soit un total mensuel de 608 EUR/mois. Dépôt de garantie : 510 EUR Les honoraires de location 433EUR TTC (incluent le montant de l'états des lieux de 118EUR TTC). Les informations sur les risques auxquels ce bien est exposé sont disponibles sur le site Géorisques : www.georisques.gouv.fr Pour tout renseignement complémentaire et visite : Clara KRYZANSKI - 07.83.14.79.53 - clara@stuckert-immobilier.fr Référence annonce : 71638
39.39 m²
3 m²
2
1
1
1
1
433 %
98 € / mois
2022
Oui
Oui (99 lots)
Consommations énergétiques
Logement économe
91
Logement énergivore (kWhEP/m2/an)
Émissions de gaz à effet de serre
Faible émission de GES
19
Forte émission de GES(kgeqCO2/m2/an)
Contact GAUTIER
Contacter gratuitement à l'aide du formulaire ci-dessous.