Les charges de location sont prévisionnelles mensuelles avec régularisation annuelle.
La part des honoraires pour la réalisation de létat des lieux de ce bien est de 199 euros.
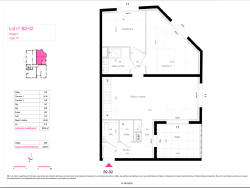
A MULHOUSE, dans la résidence CITYZEN 1, nous vous proposons un logement T3 NoB2-02 de 66.51 m2 sis au 2eme étage. Il se compose d'une pièce de vie de 24.86 m2 avec cuisine ouverte sur séjour et donnant sur une loggia de 8.98 m2, une chambre de 14.96 m2 et une autre de 9.66 m2, une salle d'eau avec douche, meuble vasque et WC séparer. Parking NoPSS11. PAS DE FISCALITE Informations financières : Loyer 675,04EUR /mois Provisions/charges : 132EUR/ mois (avec régul. Annuelle), comprenant l'eau froide, l'eau chaude, le chauffage et les charges communes. Soit un total mensuel de 807,04 EUR/mois. Dépôt de garantie : 675,04 EUR Honoraires charge locataire : 731 EUR TTC (incluant le montant de l'état des lieux facturé pour 199,00 euros TTC) Les informations sur les risques auxquels ce bien est exposé sont disponibles sur le site Géorisques : www.georisques.gouv.fr Pour tout renseignement complémentaire et visite : KRYZANSKI Clara - 07.83.14.79.53. - clara@stuckert-immobilier.fr Disponible à partir du 30/10/2025 - Référence annonce : 67495
66.51 m²
24 m²
3
2
1
1
2
731 %
30/10/2025
132 € / mois
Sud
Est
1
Oui
Consommations énergétiques
Logement économe
88
Logement énergivore (kWhEP/m2/an)
Émissions de gaz à effet de serre
Faible émission de GES
16
Forte émission de GES(kgeqCO2/m2/an)
Contact STUCKERT
Contacter gratuitement à l'aide du formulaire ci-dessous.