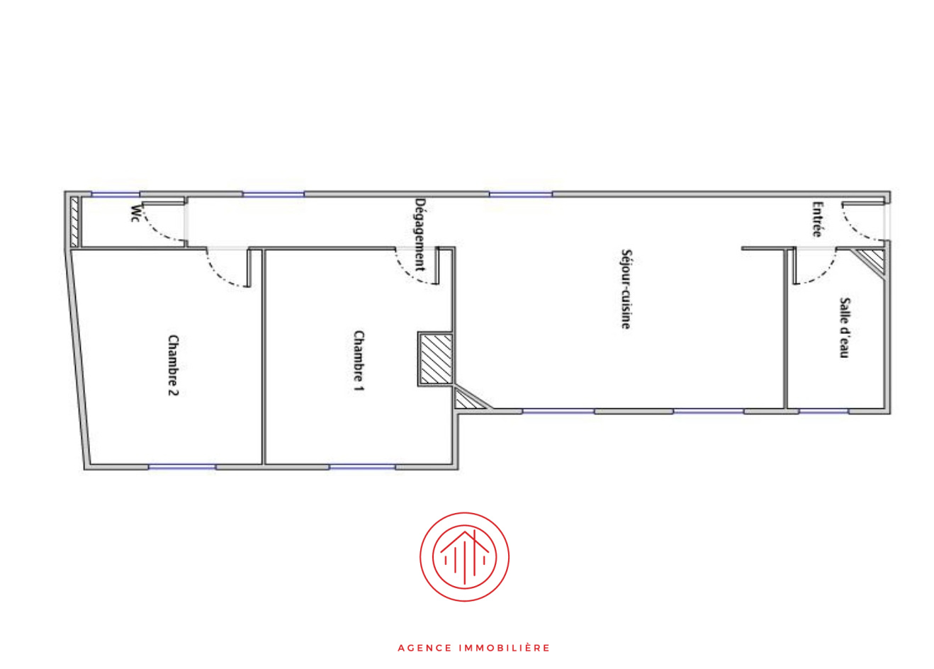
NICE CHAMBRUN/ ST MAURICE Une Maison individuelle de 1926 entiérement rénovée offrant 100m2 en surface habitables et parkings et garage. Ce bien propose un confort optimal: le rez-de-chaussée dispose d'une salle d'eau avec WC , tandis que les étages inférieurs accueillent une salle de bains complète et un second WC indépendant. La pièce de vie de près de 44 m2 avec cuisine ouverte bénéficie d'un confort thermique moderne grâce à une climatisation réversible par pompe à chaleur air/air. L'extérieur se distingue par une magnifique terrasse de 48,92 m2 agrémentée d'un jacuzzi, le tout complété par un garage, deux places de parking en ext. et une cave.
Contactez M.DOMINGO Olivier au 0616944097 dès maintenant pour organiser une visite et découvrir tout le charme de cette propriété unique. « Les informations sur les risques auxquels ce bien est exposé sont disponibles sur le site Géorisques : www.georisques.gouv.fr »
100 m²
6 590 €
4
3
1
1
2
Sud
Ouest
2
1
2
Oui
Oui
Consommations énergétiques
Logement économe
156
Logement énergivore (kWhEP/m2/an)
Émissions de gaz à effet de serre
Faible émission de GES
6
Forte émission de GES(kgeqCO2/m2/an)
Contact DOMINGO
Contacter gratuitement à l'aide du formulaire ci-dessous.