Les Jardins d'Elena Myans, Savoie7 Votre terrain à bâtir au coeur d'un cadre de vie privilégié
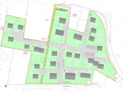
Imaginez votre maison dans un environnement calme, verdoyant et parfaitement situé Le lotissement Les Jardins d'Elena vous propose 25 lots à bâtir idéalement implantés à quelques pas seulement du centre du village de Myans, en Savoie.
Un emplacement stratégique Proximité immédiate des commerces, écoles et services Accès rapide à Chambéry et aux axes routiers principaux Un cadre naturel préservé, entre vignobles et montagnes Des lots accessibles dès 139 000
Choisissez le terrain qui correspond à votre projet de vie : surface, orientation, emplacement Chaque lot a été pensé pour offrir confort, tranquillité et valorisation patrimoniale.
Des projets de maisons clés en main sont disponibles avec notre partenaire Dauphiné Construction, constructeur local reconnu.Selon vos envies, vous pouvez opter pour une solution complète, ou bien choisir une formule « à la carte » si vous souhaitez réaliser vous-même une partie des travaux. Vous bénéficiez ainsi d'un accompagnement personnalisé pour concevoir et bâtir la maison qui vous ressemble, adaptée à vos besoins et à votre budget.
Ne manquez pas cette opportunité unique de devenir propriétaire à Myans.Contactez-nous dès aujourd'hui pour recevoir le plan des lots disponibles et découvrir les projets de maisons proposés avec Dauphiné Construction.
Honoraires à la charge du vendeur. Les informations sur les risques auxquels ce bien est exposé sont disponibles sur le site Géorisques : georisques.gouv.fr.
Contact Adrien LANDO
Contacter gratuitement à l'aide du formulaire ci-dessous.