Honoraires à la charge de l'acquéreur (Prix hors honoraires : 1250000 euros).
EXCLUSIVITE IMMIUM
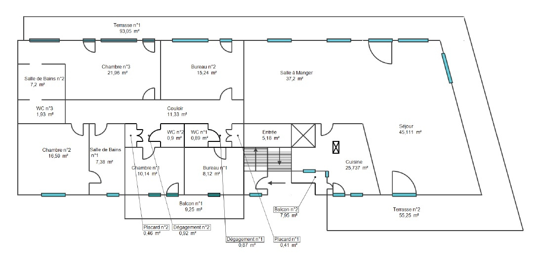
Dans une villa double de la fin du 19ème siècle, un beau triplex 8 pièces de 264m². Au 1er étage : un dégagement, un double salon séjour avec son accès balcon, un grand bureau ainsi qu'une cuisine équipée et son balcon côté jardin Au 2ème étage : un dégagement, une salle d'eau/buanderie, 3 chambres dont une master avec son dressing et sa salle de bains privative Au 3ème étage : un dégagement, 2 chambres, une salle de bains Au RDC : 2 studios loués meublés : 330 & 350 CC/Mois Ce bien d'exception offre les prestations suivantes : Climatisation, volets électriques, chauffage au gaz, garage double, jardin.
Proximité des commerces, écoles et transports en commun.
Pour plus de renseignements veuillez contacter flore.sourine@immium.com / 06.76.93.79.73
264 m²
4 920 €
46 m²
8
5
3
3 (séparés)
1 sur 3
3.92 %
455.00 € / mois
1892
2
Oui
1
1
Oui (2 lots)
Consommations énergétiques
Logement économe
168
Logement énergivore (kWhEP/m2/an)
Émissions de gaz à effet de serre
Faible émission de GES
23
Forte émission de GES(kgeqCO2/m2/an)
Contact Flore SOURINE
Contacter gratuitement à l'aide du formulaire ci-dessous.