Honoraires à la charge de l'acquéreur (Prix hors honoraires : 155900 euros).
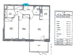
STRASBOURG - PARC DES POTERIES - Rue Sallustre, Superbe appartement 3 pièces de 59m², situé au deuxième étage avec ascenseur d'une copropriété de 2012 en 2ème ligne au calme donnant sur des jardins ! avec une vue dégagée en retrait de la route - Ce bien comprend : -une entrée 3,6m2, -un séjour donnant accès à un balcon avec vue sur parc, un coin cuisine équipée (four, plaques et hotte) l'ensemble d'une surface de 18m2, -un WC séparé, - 2x chambres avec placard de rangement de 12,4 et 10,5m2, - un dégagement avec placard de rangement de 3,6m2, - une salle de bains avec double vasque de 4,3m2. Charges 169 ! par mois gestion de l'immeuble, espace vert ménage etc..ainsi que le chauffage et eau chaude inclus. Un garage possible en option en sous-sol (+ 8 000)
Chauffage collectif au gaz - DPE : D
Honoraires inclus de 2.57% TTC à la charge de l'acquéreur. Prix hors honoraires 155 900 . Dans une copropriété de 204 lots. Quote-part moyenne du budget prévisionnel 2 034 /an. Aucune procédure n'est en cours. Classe énergie D, Classe climat D Montant moyen estimé des dépenses annuelles d'énergie pour un usage standard, établi à partir des prix de l'énergie de l'année 2021 : entre 520.00 et 750.00 . Les informations sur les risques auxquels ce bien est exposé sont disponibles sur le site Géorisques : georisques.gouv.fr.