Honoraires à la charge de l'acquéreur (Prix hors honoraires : 505000 euros).
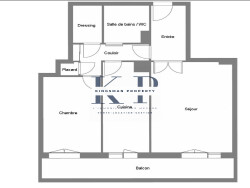
Dans une résidence bien entretenue avec ascenseur, découvrez ce bel appartement de 52,5 m², niché au 4e étage sur 10, baigné de lumière naturelle et entouré de verdure. L'entrée distribue un séjour agréable, une chambre confortable, une salle d'eau avec Wc, ainsi qu'une cuisine indépendante entièrement équipée (possibilité d'ouvrir sur le séjour si souhaité). Toutes les pièces donnent accès à un grand balcon de 10 m², orienté plein sud, idéal pour profiter du soleil et du calme environnant. Cave privative incluse. Possibilité d'acquérir un box fermé en supplément (25 000 ). Le chauffage et l'eau sont inclus dans les charges, ce qui optimise le budget au quotidien. À quelques minutes à pied, vous bénéficiez d'un excellent maillage de transports : bus, métro, tram, ainsi que des espaces verts et commodités locales à proximité immédiate. Un bien rare alliant fonctionnalité, clarté et potentiel, Jardin privatif dans la copropriété à visiter sans tarder.
Honoraires inclus de 2.77% TTC à la charge de l'acquéreur. Prix hors honoraires 505 000 . Dans une copropriété de 152 lots. Quote-part moyenne du budget prévisionnel 2 640 /an. Aucune procédure n'est en cours. Classe énergie D, Classe climat D Montant estimé des dépenses annuelles d'énergie pour un usage standard : entre 770.00 et 1080.00 sur les années 2021, 2022 et 2023 (abonnements compris). Les informations sur les risques auxquels ce bien est exposé sont disponibles sur le site Géorisques : georisques.gouv.fr.
56 m²
9 268 €
10 m²
17 m²
2
1
1
1
4 sur 10
2.77 %
226.00 € / mois
1974
Sud
1 (10 m²)
Oui
Oui
Oui
Oui (152 lots)
Consommations énergétiques
Logement économe
187
Logement énergivore (kWhEP/m2/an)
Émissions de gaz à effet de serre
Faible émission de GES
40
Forte émission de GES(kgeqCO2/m2/an)
Contact KINGSMAN PROPERTY
Contacter gratuitement à l'aide du formulaire ci-dessous.