Honoraires à la charge de l'acquéreur (Prix hors honoraires : 400000 euros).
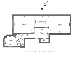
À proximité du métro Alésia (ligne 4), dans la rue Marie Rose, calme, au sein d'un très bel immeuble en pierre de taille face à très belle église en brique, se situe au 4? étage AVEC ASCENSEUR, un appartement de 2/3 pièces de 50.87 m2 Carrez à rénover. Il se compose d'une entrée avec un plan en étoile desservant chaque pièce, de grands placards ainsi que d'un dressing, d'un double séjour avec coin salle à manger pour un total de 21m2, un petit balcon donnant sur une rue calme, exposé Sud-Ouest. L'appartement dispose également d'une grande chambre de 13.88m2 avec vue dégagée et beau parquet droit, d'une salle d'eau avec WC, ainsi que d'une grande cuisine équipée. Appartement à fort potentiel, idéalement situé à proximité du métro et des commerces, tout en bénéficiant du calme de la rue. Plan modulable en inversant séjour et chambre ou autres solutions... Copropriété : 49 lots dont 31 lots principaux. Quote-part budget prévisionnel annuel : ... euros. DPE classe d'énergie E (242 kWh/m2an d'énergie primaire soit 237kWh/m2an d'énergie finale) / GES E (53kgCO2/m2an) / estim. 1220 - 1700EUR prix moyens des énergies indexés sur années 2021, 2022 et 2023, abonnements inclus. 'Les informations sur les risques auxquels ce bien est exposé sont disponibles sur le site Géorisques : www.georisques.gouv.fr'. Prix affiché honoraires inclus à 4.00%TTC. Agence Arc-en-Ciel Immo sur rendez-vous personnalisé du lundi au samedi Tel 01.71.18.28.60 (transféré vers nos téléphones portables) info@arc-en-ciel-immo.com - www.arc-en-ciel-immo.com
51 m²
8 157 €
1 m²
15 m²
3
1
1
1
4 sur 7
4.00 %
1880
Sud
Ouest
1 (1 m²)
Oui
Oui
Oui (49 lots)
Consommations énergétiques
Logement économe
242
Logement énergivore (kWhEP/m2/an)
Émissions de gaz à effet de serre
Faible émission de GES
53
Forte émission de GES(kgeqCO2/m2/an)
Contact Arc En Ciel Immo
Contacter gratuitement à l'aide du formulaire ci-dessous.