Une maison en exclusivité avec ses points forts :
- Secteur recherché de Saint Denis les Ponts
- Zone pavillonnaire
- Jolie parcelle entièrement clôturée
- Plain pied
- Non mitoyenne
- Luminosité
- Petit budget
- Ecrin de nature
Le secteur :
Situation géographique idéale : petite commune (ancienne, désormais intégrée à Saint-Denis Lanneray) située au c?ur d'un triangle Chartres?Nogent?le?Rotrou?Orléans, à environ 3?km de Châteaudun
Réseau de communes proches : à vol d'oiseau, Châteaudun (3?km), Douy (4?km), Lanneray (4?km), La Chapelle?du?Noyer (4,5?km) et Saint?Hilaire?sur?Yerre (5?km)
Commerces et services variés : hypermarché, supermarché, boulangerie?pâtisserie, banques, opticien, coiffeurs, agences, vêtements, station?service?, avec encore plus d'offres à Châteaudun à proximité immédiate
Infrastructures scolaires : une école primaire publique (Robert Desnos) dans la commune; collèges et lycées de bonne réputation à Châteaudun, facilement accessibles
Accès et transports : situé sur la route départementale D927, avec desserte TER/BUS via Châteaudun et connexion au réseau Rémi (TER Centre Val de Loire), assurant une bonne liaison vers l'agglomération et Orléans/Paris
Extérieurs et dépendances :
La parcelle de près de 550m2 est entièrement clôturée et bénéficie d'une parfaite exposition Est/Ouest. Vous pourrez faire le tour de la maison puisqu'elle n'est ni mitoyenne ni en limite de propriété. Une grande terrasse vous permettra d'apprécier la belle saison. Un cabanon de rangement sur dalle sera un atout stockage.
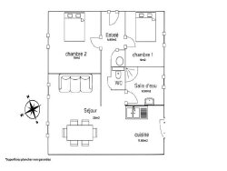
La maison :
Environ de 75m2, vous apprécierez son caractère de plain pied. Que vous soyez une personne seule, un jeune couple ou alors retraité(e)(s), ce bien vous séduira par son potentiel, ses volumes ainsi que sa lumière. Une vaste entrée avec rangements desservira deux chambres spacieuses, une vaste salle d'eau avec toilettes séparées, ainsi qu'une jolie pièce à vivre avec cuisine ouverte donnant sur la terrasse. La pièce à vivre présente un volume ainsi qu'une disposition intéressantes, permettant des espaces salon, salle à manger et cuisine spacieux et bien distincts.
Côté technique :
Assainissement collectif, bonnes menuiseries bois double vitrage 16mm , ni plomb ni amiantes, isolation des combles 35cm récente.
Visite virtuelle 360° sur demande,
Vidéo de présentation sur ma page YouTube,
J'attends votre appel pour planifier une visite.
Cette annonce référence 299203 vous est présentée par votre agent commercial BSK Immobilier AUDREY ADAM (EIRL) immatriculé au RSAC de ORLEANS (45000) sous le numéro 85088982500020.
Prix du bien : 99 999,00 €
Les honoraires d'agence sont à la charge du vendeur.
A propos des performances énergétiques :
Date de réalisation du diagnostic énergétique : 15/07/2021
Score DPE : 415 kWhEP/m²/an
Score GES : 14 kgepCO2/m²/an
Montant estimé des dépenses annuelles d'énergie pour un usage standard : entre 2332.00 € et 3156.00 € par an. Prix moyens des énergies indexés sur l'année 2021 (abonnements compris).
Les informations sur les risques auxquels ce bien est exposé sont disponibles sur le site Géorisques : www.georisques.gouv.fr
74 m²
1 351 €
3
2
1
1
1973
Ouest
Consommations énergétiques
Logement économe
415
Logement énergivore (kWhEP/m2/an)
Émissions de gaz à effet de serre
Faible émission de GES
14
Forte émission de GES(kgeqCO2/m2/an)
Contact IAD France - Audrey ADAM
Contacter gratuitement à l'aide du formulaire ci-dessous.