Pentouse de 123m2 habitables avec 200m2 de terrasse avec piscine
Montpellier 34070
0
Honoraires à la charge du vendeur.
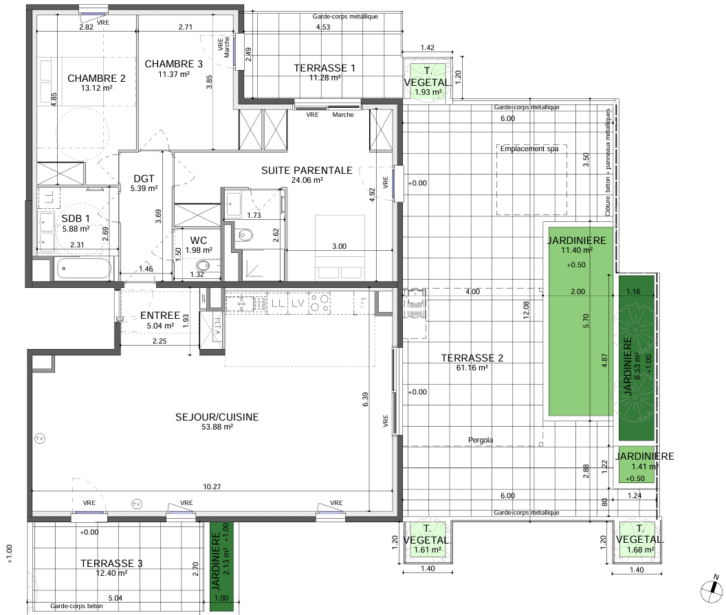
Montpellier Secteur Clinique Saint-RochSitué au 4e et dernier étage de la Résidence Gary Pons, ce penthouse raffiné offre un cadre de vie unique avec accès privatif par ascenseur directement dans l'appartement. L'entrée s'ouvre sur un vaste et lumineux salon/séjour, prolongé par une cuisine ouverte entièrement équipée. L'ensemble bénéficie de larges baies vitrées qui inondent l'espace de lumière naturelle et s'ouvrent sur une immense terrasse offrant une vue panoramique dominante et dégagée jusqu'à la mer. L'espace nuit comprend trois chambres, dont une suite avec salle d'eau privative, une salle de bains, un WC séparé et un cellier/buanderie. À l'extérieur, la terrasse de 200 m², véritable lieu de vie, accueille une piscine privative, un espace repas couvert ainsi qu'un bureau indépendant de 20 m², idéal pour le télétravail ou une activité professionnelle. L'appartement est vendu avec un garage fermé en sous-sol.
Honoraires à la charge du vendeur. Dans une copropriété de 40 lots. Quote-part moyenne du budget prévisionnel 4 000 /an. Aucune procédure n'est en cours. Classe énergie B, Classe climat A Montant estimé des dépenses annuelles d'énergie pour un usage standard : entre 910.00 et 1280.00 sur les années 2021, 2022 et 2023 (abonnements compris). Les informations sur les risques auxquels ce bien est exposé sont disponibles sur le site Géorisques : georisques.gouv.fr.