PERPIGNAN CENTRE : L'agence Laville Immo vous présente un concept de vie unique : une maison neuve en 3 pièces (R+2), pour allier légèreté architecturale et confort quotidien. Livraison prévue pour le 1er trimestre 2027 ! Une maison 'sur pilotis' à l'agencement optimisé :
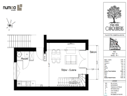
Rez-de-chaussée : Un espace pratique avec cellier, deux emplacements de parking couverts et un jardin privé de 37 m2 pour vos moments de détente en plein air.
1er Étage : Un vaste salon-séjour de plus de 30 m2 avec cuisine américaine semi-équipée, le tout ouvrant sur un balcon baigné de lumière.
2ème Étage : L'espace nuit avec deux chambres équipées de placards, une salle d'eau aménagée et un WC individuel.
Surface totale : 69 m2 de pur confort moderne.
Prestation de qualité : Volets roulants électriques, double vitrage, chauffage individuel et carrelage grand format. Des avantages financiers : C'est le moment de devenir propriétaire grâce à des conditions rares sur le marché :
TVA réduite à 5,5 % (au lieu de 20 %) !
Éligible au Prêt à Taux Zéro (PTZ) pour financer une partie de votre projet.
Frais de notaire réduits.
Située dans une résidence sécurisée, cette maison incarne l'avenir de l'habitat urbain : calme, contemporain et accessible. Contactez-nous pour une étude personnalisée : 04.68.34.29.86 / laville-immo@orange.fr Bien soumis au statut de la copropriété. Honoraires à la charge du vendeur. Informations sur les risques disponibles sur : www.georisques.gouv.fr
69.02 m²
3 622 €
31 m²
3
2
1
1
01/01/2027
2027
Nord
Oui
2
Consommations énergétiques
Logement économe
15
Logement énergivore (kWhEP/m2/an)
Émissions de gaz à effet de serre
Faible émission de GES
4
Forte émission de GES(kgeqCO2/m2/an)
Contact SELLIER
Contacter gratuitement à l'aide du formulaire ci-dessous.