Petite résidence de charme de 12 appartements vendus neufs ,
Pau 64000
0
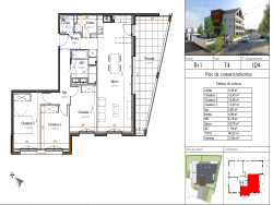
Présentation de l'Opération, vente neuf (L'appartement présenté est un appartement T4 , au 1er étage avec terrasse, Sud Ouest. N'hésitez pas à regarder notre grille de prix ci dessous pour plus de choix.)
Le projet de construction se situe dans la commune de PAU, proche Total, Leroy merlin, Auchan, stade du Hameau. Quartier calme et résidentiel.
Il comporte 12 appartements répartis dans un seul bâtiment en R+2+combles avec une toiture à deux pans et complété par un sous-sol destiné aux stationnements. Appartements vendus neufs, par promoteur reconnu. Promotion finalisée dans l'été 2027.
Les appartements vont du T2 au T5, de 48m2 à 147 m2 avec de belles terrasses.
Le sous-sol comprend un parking souterrain de 17 places individuelles, attribuées aux différents appartements, ainsi qu'un local à vélos et poussettes. Il est accessible par une rampe d'accès située au Nord-Ouest de la parcelle.
La cage d'escalier et l'ascenseur partent du sous-sol pour desservir tous les étages.
L'accès au bâtiment se fait par une servitude de passage desservant l'ensemble résidentiel voisin
La résidence est sécurisée par un portail d'accès pompier et un portillon piéton.
Un parking aérien de 5 places est prévu dans la résidence pour l'accueil des visiteurs.
Le cheminement piéton est en béton de couleur constatée conformément à la norme PMR en vigueur permettant la sécurité et l'usage partagé de la voirie et des piétons.
Caractéristiques générales
La résidence est fermée et sécurisée par visiophone électronique. Les appartements sont confortables, tournés vers l'extérieur, lumineux avec des larges baies vitrées permettant de bénéficier d'une belle vue et d'un ensoleillement maximal. Tous les appartements possèdent des terrasses allant de 9,50 m2 à 53 m2. Les appartements de rez-de-chaussée bénéficient d'un jardin privatif de 47 m2 à 114 m2
Equipements des appartements
Mode de chauffage par Pompe à Chaleur : fonctionnement du chauffage et de refroidissement par système gainable reposant sur une unité centrale Air/Air qui traite l'air pour le refroidir ou le chauffer, avant de le distribuer silencieusement travers un réseau de conduits. Production d'eau chaude sanitaire par ballon thermodynamique Robinet extérieur sur chaque terrasse Salles de bains équipées (vasque avec tablette sur meuble, miroir, bandeau lumineux, sèche serviette électrique, douche à l'italienne avec pare douche en verre). WC suspendu, réservoir silencieux, abattant double frein et économiseur d'eau. Arrivée des canalisations pour l'installation du lave mains dans les WC (en option) Cuisines non équipées, laissées au choix des futures occupants. Sont prévus les branchements en attente pour l'évier, l'arrivée du gaz ou de l'électricité pour les plaques de cuisson (au choix du client), le lave-linge (cellier), le lave-vaisselle, le frigo. Antenne hertzienne collective en toiture pour réception collective des chaînes de la TNT. Système d'interphonie/visiophonie et de contrôle d'accès en liaison avec l'entrée. 1 prise électrique extérieure et éclairage par hublots étanches pour les terrasses et balcons. Fourreautage prévu pour alimentation de stores bannes devant les séjours. Contrôle d'accès par interphonie/visiophonie à l'entrée de la résidence. Prise IRVE- installation nécessaire à la recharge des voitures hybrides ou électriques : installation uniquement du câble, le compteur et la prise reste à la charge de l'acquéreur. Détecteurs de fumée dans les logements Fibre prévue pour chaque logement. Sols en carrelages grés cérame dans toutes les pièces sauf la chambre principale. Plancher en bois collé pour la chambre principale. Plafonds : peinture acrylique mate blanche Murs des pièces sèches : peinture acrylique satinée. 2 coloris par logements au choix du cli - Annonce rédigée et publiée par un Agent Mandataire -
90 m²
3 889 €
33 m²
4
3
1
1
1 sur 3
2026
Sud
Ouest
1
1
Oui (84 lots)
Contact Florent DUBOS
Contacter gratuitement à l'aide du formulaire ci-dessous.