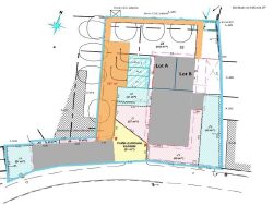
Plateau à rénover avec terrasse-Lot B Situé entre Vonnas (01540) et Bourg en Bresse (01000), TERACYTE vous propose de devenir propriétaire d'un plateau en duplex à réhabiliter offrant la possibilité d'effectuer les aménagements et la personnalisation de l'espace intérieur comme vous le souhaitez avec une surface au sol de 50m². Situé à l'extrémité Nord-Est d'un bâtiment à usage d'habitation composé de 5 logements, ce plateau bénéficie d'une toiture entièrement révisée, de fenêtres et portes en PVC double vitrage ainsi qu'une façade neuve. Tous les travaux de raccordements (eaux + électricité) et évacuations seront effectués ! Nous sommes en mesure de vous accompagner sur la partie travaux: chiffrage, devis, mise en relation avec les artisans. Les + du produit : Un terrain de 130m². Une terrasse exposée Est Une place de parking Si vous souhaitez être propriétaire d'un duplex, acheter un plateau à aménager est la meilleure solution. Même en comptant les travaux de gros oeuvre et de personnalisation, le budget reste bien en dessous du prix d'une habitation déjà réhabilitée. De plus vous bénéficiez d'AVANTAGES FISCAUX pour les acquéreurs en résidence principale et de DÉFICIT FONCIER pour les acquéreurs souhaitant acheter pour louer. Alors amateurs de travaux, n'hésitez plus et contactez, dès aujourd'hui, Fabrice Lacombe, Agent Commercial enregistré au RSAC de Bourg en Bresse sous le n° 884 089 491. Les honoraires sont charge vendeur.