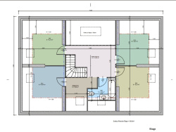
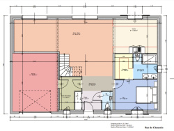
Vous rêvez de concevoir votre maison idéale dans un cadre paisible tout en restant proche de l'agglomération? Cette opportunité rare est faite pour vous ! Située à environ 10 minutes de Pont-Sainte-Marie, au coeur de la commune dynamique de Voué, cette maison neuve de 2024 offre un plateau brut à aménager selon vos envies, d'une superficie totalisant environ 150M2 habitable avec un niveau. Conforme à la Réglementation Environnementale RE 2020, cette construction de qualité est hors d'eau, hors d'air, vendue non viabilisée mais prête à être personnalisée. Vous bénéficiez d'une assurance Dommage-Ouvrage de 10 ans, d'une étude thermique, ainsi que de l'étude de sol, fournis pour vous accompagner dans votre projet. Des devis d'aménagement peuvent également être proposés pour faciliter votre projection. Idéalement implantée sur une parcelle de 1 284 m2, la maison profite d'un environnement calme, avec toutes les commodités à proximité : écoles maternelle et primaire, boulangerie, restaurants, bibliothèque, distributeur de produits fermiers, et bien plus encore, parfait pour une vie de famille sereine. Ce bien est une excellente opportunité pour les acquéreurs éligibles au Prêt à Taux Zéro, souhaitant accéder à la propriété d'une maison neuve, spacieuse et évolutive, tout en maîtrisant leur budget. Une opportunité rare à découvrir sans attendre ! Non soumis au DPE.
150 m²
1 193 €
6
4
1
1
2
2024
1
Contact Grégory MICHEL
Contacter gratuitement à l'aide du formulaire ci-dessous.