RARE A Fortschwihr, MAISON 5 pièces de 145 m2 avec garage
Fortschwihr 68320
0
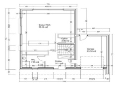
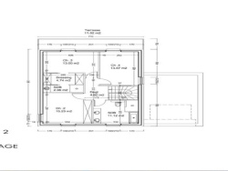
A Fortschwihr, MAISON 5 pièces de 145 m2 avec garage idéalement située à proximité immédiate de toutes commodités et de Colmar. Composée d'une entrée de 10m2, une cuisine aménagée et entièrement équipée ouverte sur le salon séjour de 50m2 avec un accès au jardin, un WC indépendant et un cellier. A l'étage: une suite parentale avec dressing et salle d'eau privative, 2 grandes chambres et 1 salle de bain avec fenêtre. La maison dispose d'un garage de 24m2 avec une porte motorisée et un accès direct à la maison et le jardin. Construction 2022 et aux normes PMR. Disponible de suite! Les informations sur les risques auxquels ce bien est exposé sont disponibles sur le site Géorisques : www. georisques.gouv.fr
145 m²
2 683 €
5
3
2023
1
Oui
Consommations énergétiques
Logement économe
90
Logement énergivore (kWhEP/m2/an)
Émissions de gaz à effet de serre
Faible émission de GES
10
Forte émission de GES(kgeqCO2/m2/an)
Contact Teodora MARTIN
Contacter gratuitement à l'aide du formulaire ci-dessous.